Loft 120 Nord

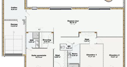
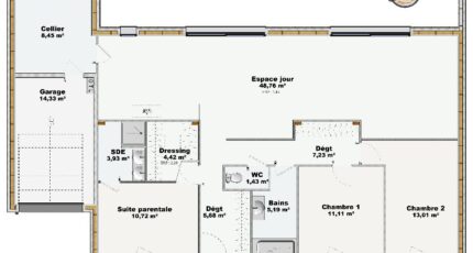
Plan maison 4 pièces 3 chambres Surface maison 120 m2

Loft 120 : L'harmonie du bois et de la lumière
Imaginez un espace de vie où la chaleur du bois se marie à la luminosité naturelle, créant une atmosphère de sérénité et de bien-être. Le Loft 120, avec ses 120 m² de plain-pied, est conçu pour vous offrir un confort absolu au quotidien.
Dès l'entrée de 6 m², vous serez enveloppé par une sensation d'espace et de douceur. La pièce de vie de 49 m², véritable coeur de la maison, s'ouvre sur l'extérieur grâce à de larges baies vitrées, laissant entrer la lumière et offrant une vue apaisante sur votre jardin. L'ossature bois des murs apporte une isolation naturelle, garantissant une température agréable en toute saison et une atmosphère chaleureuse.
Les trois chambres, conçues comme de véritables cocons, invitent à la détente et au repos. Les deux salles d'eau, modernes et fonctionnelles, sont pensées pour votre confort. Le garage intégré de 14 m² offre un espace pratique pour votre véhicule et vos rangements.
Le Loft 120 est bien plus qu'une maison, c'est un refuge où vous pourrez vous ressourcer et profiter de chaque instant. L'alliance du bois, de la lumière et des espaces généreux crée une atmosphère unique, propice au bien-être et à la convivialité.

Construire ce modèle ?

    * Champs obligatoires

    Vos informations sont traitées par HEXAOM et transmises à un conseiller commercial qui vous contactera afin de répondre à votre demande. Les plans et images présentés sur notre site sont la propriété d’HEXAOM et ne peuvent pas être reproduits sans son accord. Pour retrouver notre politique de protection des données personnelles et exercer vos droits conformément à la « loi informatique et liberté » cliquez-ici.