Terrain à bâtir à
Marly-le-Roi (78160) Référence : MA2373313

Prix du projet : Terrain

prix 854 000 €

  • Surface terrain 250 m2

Exceptionnel à Marly-le-Roi : L'Art de Vivre Royal dans un Écrin Contemporain

Maison livrable IMMEDIATEMENT

Imaginez un cadre de vie où l'élégance de l'architecture traditionnelle rencontre le confort absolu de la modernité. Nichée au sein d'une résidence intimiste visant l'excellence environnementale, cette maison n'est pas simplement une habitation, c'est une invitation à la sérénité.

Proposée au prix de **855 000 €** (incluant deux places de stationnement sécurisées en sous-sol), cette villa neuve de 5 pièces déploie ses charmes sur trois niveaux, offrant une surface optimisée pour la vie de famille, sans aucun travaux à prévoir. Ici, le "prêt-à-vivre" prend tout son sens : vous n'avez plus qu'à poser vos valises.

### Une Signature Architecturale et un Confort Inégalé

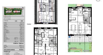
Dès l'entrée, le ton est donné. Le rez-de-chaussée a été pensé comme le coeur battant de la maison, un espace de convivialité fluide et lumineux.

* **L'Espace de Réception :** L'entrée, équipée d'un placard fonctionnel, s'ouvre sur un magnifique séjour de près de **29 m²**. Baignée de lumière naturelle, cette pièce de vie se prolonge vers l'extérieur grâce à de larges ouvertures donnant sur une terrasse et un **jardin privatif clos de 44 m²**. Véritable pièce supplémentaire à ciel ouvert, ce jardin est l'endroit rêvé pour vos déjeuners d'été ou les jeux des enfants, en toute intimité.
* **La Cuisine :** Pour répondre aux besoins des familles qui apprécient autant la convivialité que l'organisation, la cuisine est indépendante. Elle permet de préparer les repas sans perturber la quiétude du salon, tout en restant connectée à la vie de la maison.

### L'Espace Nuit : Intimité et Fonctionnalité

L'agencement des étages supérieurs a été conçu pour respecter le rythme de vie de chacun, séparant habilement l'espace des enfants de celui des parents.

**Le Premier Étage : Le Royaume des Enfants**
Ce niveau dessert trois belles chambres, dont deux avoisinent les 10 m², offrant à chaque enfant son

Mentions légales

Terrain proposé par un partenaire foncier selon disponibilités et autorisation de publicité et sélectionné par le constructeur en vue de construire une maison neuve avec un contrat de construction de maison individuelle, dans le cadre de la loi du 10/12/1990. Assurances et garanties du constructeur (RC professionnelle, décennale, dommage ouvrage, garantie de remboursement de l'acompte, livraison à prix et délai convenu) : https://www.maisonsevolution.fr/mentions-legales/.

Contactez l'agence de Cormeilles-en-Parisis

01 34 18 18 36

    * Champs obligatoires

    Vos informations sont traitées par HEXAOM et transmises à un conseiller commercial qui vous contactera afin de répondre à votre demande. Les plans et images présentés sur notre site sont la propriété d’HEXAOM et ne peuvent pas être reproduits sans son accord. Pour retrouver notre politique de protection des données personnelles et exercer vos droits conformément à la « loi informatique et liberté » cliquez-ici.