Maison neuve à
Yèbles (77390) Référence : SS2317302_3

Prix du projet : Maison avec Terrain

prix 302 900 €

  • 6 pièces
  • 5 chambres
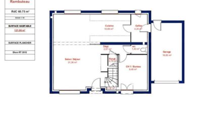
  • Surface maison 121 m2

Yèbles : maison F6 (121 m²) à vendre
IDÉALEMENT SITUÉE - MAISON 6 PIÈCES NEUVE
À quelques minutes du Transilien P (gare de Verneuil-l'Étang, 30 min de Paris), à vendre idéalement située dans Yèbles (77390), venez découvrir cette maison de 6 pièces de 121 m².
C'est une maison de 2 niveaux. Elle compte cinq chambres, une cuisine et deux salles de bains. La maison est neuve.
Le terrain de la propriété s'étend sur 661 m².
Le bien se trouve dans un quartier recherché. Une école primaire y est implantée. Côté transports, il y a les gares Verneuil-l'Étang et Mormant à moins de 10 minutes en voiture.
Il est à vendre pour la somme de 302 900 €.
N'hésitez pas à prendre contact avec Stephanie SEBAG (06-45-49-40-63) pour obtenir de plus amples informations sur la maison.

Annonce proposée par un Agent Commercial Partenaire.

Mentions légales

Terrain proposé par un partenaire foncier selon disponibilités et autorisation de publicité au prix de 118 000 €. Hors droit d'enregistrement et frais de notaire. Terrain + Maison proposés au prix de 184 900 € (Hors branchements et raccordements, papiers peints, peintures, revêtement de sol dans les chambres. Tarif modifiable sans préavis). Etiquette énergie : A. Différents modèles disponibles pour ce terrain. Assurances et garanties du constructeur (RC professionnelle, décennale, dommage ouvrage, garantie de remboursement de l'acompte, livraison à prix et délai convenu) : https://www.maisonsevolution.fr/mentions-legales/.

Contactez l'agence de Mareuil-lès-Meaux

06 22 93 94 71

    * Champs obligatoires

    Vos informations sont traitées par HEXAOM et transmises à un conseiller commercial qui vous contactera afin de répondre à votre demande. Les plans et images présentés sur notre site sont la propriété d’HEXAOM et ne peuvent pas être reproduits sans son accord. Pour retrouver notre politique de protection des données personnelles et exercer vos droits conformément à la « loi informatique et liberté » cliquez-ici.