Maison neuve à
Villevaudé (77410) Référence : GB2426566_5

Prix du projet : Maison avec Terrain

prix 384 900 €

  • 5 pièces
  • 3 chambres
  • Surface maison 90 m2

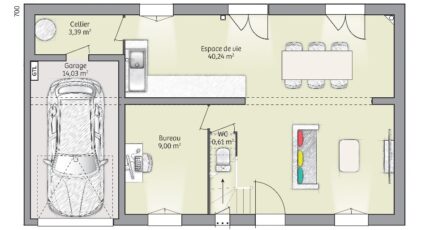
Maison F5 (90 m²) en vente à Villevaudé
MAISON 5 PIÈCES NEUVE - PROCHE DE PARIS
En vente : au pied du Transilien P (gare de Lagny-Thorigny, 25 min de Paris), nous sommes ravis de vous proposer cette maison de 5 pièces de 90 m² et de 326 m² de terrain à Villevaudé (77410).
Il s'agit d'une maison de 2 niveaux. Elle est composée de trois chambres, d'une cuisine et d'une salle de bains. Cette maison est neuve.
Il y a l'École Primaire Ivan Peyches à moins de 10 minutes à pied. Côté transports en commun, on trouve le RER B, E et A ainsi que neuf gares à moins de 10 minutes en voiture. Il y a un tennis, une bibliothèque et deux commerces à quelques minutes à peine.
Il est à vendre pour la somme de 384 900 €.
N'hésitez pas à prendre contact avec Guillaume BORDES (06-22-93-94-71) pour toute question sur cette maison, sur les modalités de vente ou sur les démarches à suivre. Maisons Evolution Mareuil-lès-Meaux est là pour vous accompagner dans tous vos projets immobiliers.

Annonce proposée par un Agent Commercial Partenaire.

Mentions légales

Terrain proposé par un partenaire foncier selon disponibilités et autorisation de publicité au prix de 200 000 €. Hors droit d'enregistrement et frais de notaire. Terrain + Maison proposés au prix de 384 900 € (Hors branchements et raccordements, papiers peints, peintures, revêtement de sol dans les chambres. Tarif modifiable sans préavis). Etiquette énergie : A. Différents modèles disponibles pour ce terrain. Assurances et garanties du constructeur (RC professionnelle, décennale, dommage ouvrage, garantie de remboursement de l'acompte, livraison à prix et délai convenu) : https://www.maisonsevolution.fr/mentions-legales/.

Contactez l'agence de Mareuil-lès-Meaux

06 22 93 94 71

    * Champs obligatoires

    Vos informations sont traitées par HEXAOM et transmises à un conseiller commercial qui vous contactera afin de répondre à votre demande. Les plans et images présentés sur notre site sont la propriété d’HEXAOM et ne peuvent pas être reproduits sans son accord. Pour retrouver notre politique de protection des données personnelles et exercer vos droits conformément à la « loi informatique et liberté » cliquez-ici.