Maison neuve à
Vaux-sur-Seine (78740) Référence : CB2322716_3

Prix du projet : Maison avec Terrain

prix 413 000 €

  • 6 pièces
  • 5 chambres
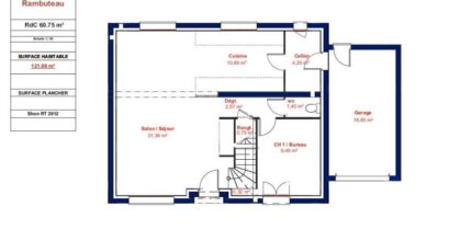
  • Surface maison 121 m2

🏡 VAUX-SUR-SEINE - MAISON T6 (121 m²) SUR TERRAIN DE 950 m²

Projet sur-mesure idéal pour les familles avec Maisons Évolution

À Vaux-sur-Seine (78740), à proximité du Transilien J (35 min de Paris), découvrez cette maison familiale de 6 pièces, 121 m², sur un terrain spacieux de 950 m², parfait pour profiter du jardin et des espaces extérieurs en famille.

Une maison pensée pour la vie familiale

5 chambres spacieuses,

Cuisine ouverte et fonctionnelle,

2 salles de bains,

2 niveaux lumineux,

Possibilité de personnaliser l'agencement et les finitions avec Maisons Évolution.

Un emplacement pratique

Quartier calme et recherché,

Écoles à proximité : École Maternelle des Groux et École Élémentaire Marie Curie à moins de 10 minutes à pied,

Commerces et services accessibles facilement : bibliothèque, tennis, boulangeries, commerces, épicerie, bureau de poste,

Gare Vaux-sur-Seine à proximité pour vos déplacements quotidiens.

Votre projet clé en main

Avec Maisons Évolution, bénéficiez :

D'une conception sur-mesure adaptée aux besoins de votre famille,

D'un suivi complet du chantier du début à la remise des clés,

D'une maison neuve fonctionnelle et confortable, prête à accueillir votre quotidien.

Prix du projet : 413 000 €
(Terrain + maison, hors frais annexes)

📞 Contact : Caroline BETHERY - O6 26 57 38 84
📍 Maisons Évolution - Agence de Cormeilles-en-Parisis

Un terrain de 950 m² à Vaux-sur-Seine pour construire votre maison familiale sur-mesure, pratique, confortable et parfaitement adaptée à la vie de famille.

Mentions légales

Terrain proposé par un partenaire foncier selon disponibilités et autorisation de publicité au prix de 189 000 €. Hors droit d'enregistrement et frais de notaire. Maison proposée, avec un contrat de construction de maison individuelle, dans le cadre de la loi du 19/12/1990, au prix de 224 000 € (Hors branchements et raccordements, papiers peints, peintures, revêtement de sol dans les chambres, qui sont chiffrés dans les travaux qui restent à charge du client. Tarif modifiable sans préavis). Étiquette énergie : A. Différents modèles disponibles pour ce terrain. Assurances et garanties du constructeur comprises (RC professionnelle, décennale, dommage ouvrage).

Contactez l'agence de Cormeilles-en-Parisis

01 34 18 18 36

    * Champs obligatoires

    Vos informations sont traitées par HEXAOM et transmises à un conseiller commercial qui vous contactera afin de répondre à votre demande. Les plans et images présentés sur notre site sont la propriété d’HEXAOM et ne peuvent pas être reproduits sans son accord. Pour retrouver notre politique de protection des données personnelles et exercer vos droits conformément à la « loi informatique et liberté » cliquez-ici.