Maison neuve à
Vauréal (95490) Référence : CB2351727_1

Prix du projet : Maison avec Terrain

prix 372 900 €

  • 6 pièces
  • 4 chambres
  • Surface maison 105 m2

VENTE - Maison neuve F6 - 105 m² - Vauréal (95490)

IDÉALEMENT SITUÉE - MAISON 6 PIÈCES NEUVE - PROJET SUR-MESURE AVEC MAISONS ÉVOLUTION

À Vauréal, à proximité de la station Cergy-le-Haut du RER A (40 min de Paris), découvrez cette maison neuve de 6 pièces et 105 m², construite sur un terrain de 740 m², parfaite pour un projet familial, un primo-accédant ou un investissement locatif.

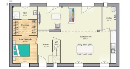
Description de la maison

Surface habitable : 105 m²
6 pièces dont 4 chambres
Cuisine modulable selon vos besoins
2 salles de bains
Construction neuve, sur 2 niveaux
Maison conçue pour accueillir un projet sur-mesure avec Maisons Évolution

Terrain plat, non viabilisé
Caractéristiques du terrain

Superficie : 740 m², offrant un bel espace extérieur
Terrain plat
Zone constructible, idéale pour personnaliser votre maison

Un emplacement idéal et pratique
Tous types d'écoles (maternelle au lycée) à moins de 10 minutes à pied
crèches à proximité immédiate
Commerces, boulangeries, épiceries, deux supermarchés
Bibliothèque, bassin de natation, deux terrains de tennis
Accès rapide aux RER A et C et plusieurs gares en moins de 10 minutes en voiture

Prix de vente : 372 900 €

Pour plus d'informations sur cette maison, sur les possibilités de personnalisation ou sur les démarches d'achat, contactez Caroline BETHERY au O6 26 57 38 84.
Maisons Évolution - Agence de Cormeilles-en-Parisis vous accompagne dans toutes les étapes de votre projet immobilier et dans la réalisation de votre maison sur-mesure.

Mentions légales

Terrain proposé par un partenaire foncier selon disponibilités et autorisation de publicité au prix de 189 900 €. Hors droit d'enregistrement et frais de notaire. Terrain + Maison proposés au prix de 183 000 € (Hors branchements et raccordements, papiers peints, peintures, revêtement de sol dans les chambres. Tarif modifiable sans préavis). Etiquette énergie : A. Différents modèles disponibles pour ce terrain. Assurances et garanties du constructeur (RC professionnelle, décennale, dommage ouvrage, garantie de remboursement de l'acompte, livraison à prix et délai convenu) : https://www.maisonsevolution.fr/mentions-legales/.

Contactez l'agence de Cormeilles-en-Parisis

01 34 18 18 36

    * Champs obligatoires

    Vos informations sont traitées par HEXAOM et transmises à un conseiller commercial qui vous contactera afin de répondre à votre demande. Les plans et images présentés sur notre site sont la propriété d’HEXAOM et ne peuvent pas être reproduits sans son accord. Pour retrouver notre politique de protection des données personnelles et exercer vos droits conformément à la « loi informatique et liberté » cliquez-ici.