Maison neuve à
Trosly-Breuil (60350) Référence : SS2309590_3

Prix du projet : Maison avec Terrain

prix 239 000 €

  • 6 pièces
  • 5 chambres
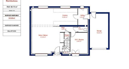
  • Surface maison 121 m2

Maison de 6 pièces (121 m²) à vendre à Trosly-Breuil
IDÉALEMENT SITUÉE - MAISON 6 PIÈCES NEUVE
À vendre à 8 km de Compiègne, nous sommes ravis de vous proposer cette maison de 6 pièces de 121 m² idéalement située dans Trosly-Breuil (60350). Son intérieur comporte cinq chambres, une cuisine et deux salles de bains.
Le terrain du bien s'étend sur 371 m².
C'est une maison de 2 niveaux. Elle est neuve.
La maison est située dans un secteur prisé. On y trouve l'École Élémentaire du Bosquet et l'École Maternelle du Bosquet. Il y a un accès à la nationale N31 à 10 km. On trouve une bibliothèque, un tennis et un supermarché à quelques minutes à peine.
Elle est proposée à l'achat pour 239 000 €.
Prenez contact avec notre agence (Stephanie SEBAG : 06-45-49-40-63) pour tout renseignement sur la maison. Maisons Evolution Mareuil-lès-Meaux est là pour vous accompagner à toutes les étapes de votre projet.

Annonce proposée par un Agent Commercial Partenaire.

Mentions légales

Terrain proposé par un partenaire foncier selon disponibilités et autorisation de publicité au prix de 49 000 €. Hors droit d'enregistrement et frais de notaire. Maison proposée, avec un contrat de construction de maison individuelle, dans le cadre de la loi du 19/12/1990, au prix de 190 000 € (Hors branchements et raccordements, papiers peints, peintures, revêtement de sol dans les chambres, qui sont chiffrés dans les travaux qui restent à charge du client. Tarif modifiable sans préavis). Étiquette énergie : A. Différents modèles disponibles pour ce terrain. Assurances et garanties du constructeur comprises (RC professionnelle, décennale, dommage ouvrage).

Contactez l'agence de Mareuil-lès-Meaux

06 22 93 94 71

    * Champs obligatoires

    Vos informations sont traitées par HEXAOM et transmises à un conseiller commercial qui vous contactera afin de répondre à votre demande. Les plans et images présentés sur notre site sont la propriété d’HEXAOM et ne peuvent pas être reproduits sans son accord. Pour retrouver notre politique de protection des données personnelles et exercer vos droits conformément à la « loi informatique et liberté » cliquez-ici.