Maison neuve à
Tournan-en-Brie (77220) Référence : SS2311227_6

Prix du projet : Maison avec Terrain

prix 378 500 €

  • 6 pièces
  • 5 chambres
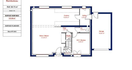
  • Surface maison 121 m2

Maison de 6 pièces (121 m²) à vendre à Tournan-en-Brie
IDÉALEMENT SITUÉE - MAISON 6 PIÈCES NEUVE
À côté de la station Tournan (Paris à 40 min avec le RER E), Maisons Evolution Mareuil-lès-Meaux vous présente cette maison de 6 pièces de 121 m² idéalement située dans Tournan-en-Brie (77220). Son intérieur offre cinq chambres, une cuisine et deux salles de bains.
Le terrain de la propriété est de 402 m².
C'est une maison de 2 niveaux. Elle est neuve.
La maison se situe dans un quartier attractif. On trouve des écoles primaires à moins de 10 minutes à pied, tout comme trois crèches. Niveau transports, il y a la station de RER Tournan (ligne E) ainsi que la gare Tournan-en-Brie juste à côté. On trouve une bibliothèque, un tennis, des commerces, trois boulangeries, un supermarché, un bureau de poste et deux épiceries à proximité. Ne manquez pas le marché Place du marché tous les samedis matin.
Son prix de vente est de 378 500 €.
Contactez notre agence (SEBAG Stephanie : 06-45-49-40-63) pour tout renseignement sur la maison ou sur les modalités de vente. Faites de vos projets immobiliers une réalité avec Maisons Evolution Mareuil-lès-Meaux.

Annonce proposée par un Agent Commercial Partenaire.

Mentions légales

Terrain proposé par un partenaire foncier selon disponibilités et autorisation de publicité au prix de 188 500 €. Hors droit d'enregistrement et frais de notaire. Terrain + Maison proposés au prix de 190 000 € (Hors branchements et raccordements, papiers peints, peintures, revêtement de sol dans les chambres. Tarif modifiable sans préavis). Etiquette énergie : A. Différents modèles disponibles pour ce terrain. Assurances et garanties du constructeur (RC professionnelle, décennale, dommage ouvrage, garantie de remboursement de l'acompte, livraison à prix et délai convenu) : https://www.maisonsevolution.fr/mentions-legales/.

Contactez l'agence de Mareuil-lès-Meaux

06 22 93 94 71

    * Champs obligatoires

    Vos informations sont traitées par HEXAOM et transmises à un conseiller commercial qui vous contactera afin de répondre à votre demande. Les plans et images présentés sur notre site sont la propriété d’HEXAOM et ne peuvent pas être reproduits sans son accord. Pour retrouver notre politique de protection des données personnelles et exercer vos droits conformément à la « loi informatique et liberté » cliquez-ici.