Maison neuve à
Thorigny-sur-Marne (77400) Référence : SS2311277_1

Prix du projet : Maison avec Terrain

prix 485 000 €

  • 6 pièces
  • 5 chambres
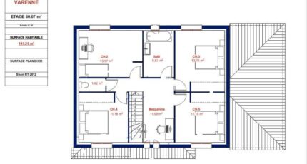
  • Surface maison 141 m2

Thorigny-sur-Marne : maison de 6 pièces (141 m²) en vente
EMPLACEMENT PRIVILÉGIÉ - MAISON 6 PIÈCES NEUVE
Au pied de la gare de Lagny-Thorigny (Paris à 25 min par le Transilien P), laissez vous charmer par en vente, bénéficiant d'un emplacement d'exception dans Thorigny-sur-Marne (77400), cette maison de 6 pièces de 141 m² et de 767 m² de terrain.
Il s'agit d'une maison de 2 niveaux. Elle se divise en cinq chambres, une cuisine et deux salles de bains. Cette maison est neuve.
La maison est située dans un secteur prisé. Plusieurs établissements scolaires (maternelle, élémentaire et collège) sont implantés à moins de 10 minutes à pied, tout comme trois crèches. Niveau transports, on trouve la gare Lagny-Thorigny à quelques pas du bien. Il y a une bibliothèque, un tennis, des commerces, des boulangeries, un supermarché, des épiceries et deux bureaux de poste à quelques minutes de la maison.
Son prix de vente est de 485 000 €.
Contactez Stephanie SEBAG (06-45-49-40-63) pour plus d'informations sur la maison ou sur les démarches à suivre.

Annonce proposée par un Agent Commercial Partenaire.

Mentions légales

Terrain proposé par un partenaire foncier selon disponibilités et autorisation de publicité au prix de 230 000 €. Hors droit d'enregistrement et frais de notaire. Terrain + Maison proposés au prix de 255 000 € (Hors branchements et raccordements, papiers peints, peintures, revêtement de sol dans les chambres. Tarif modifiable sans préavis). Etiquette énergie : A. Différents modèles disponibles pour ce terrain. Assurances et garanties du constructeur (RC professionnelle, décennale, dommage ouvrage, garantie de remboursement de l'acompte, livraison à prix et délai convenu) : https://www.maisonsevolution.fr/mentions-legales/.

Contactez l'agence de Mareuil-lès-Meaux

06 22 93 94 71

    * Champs obligatoires

    Vos informations sont traitées par HEXAOM et transmises à un conseiller commercial qui vous contactera afin de répondre à votre demande. Les plans et images présentés sur notre site sont la propriété d’HEXAOM et ne peuvent pas être reproduits sans son accord. Pour retrouver notre politique de protection des données personnelles et exercer vos droits conformément à la « loi informatique et liberté » cliquez-ici.