Maison neuve à
Sartrouville (78500) Référence : CB2320604_2

Prix du projet : Maison avec Terrain

prix 485 000 €

  • 6 pièces
  • 4 chambres
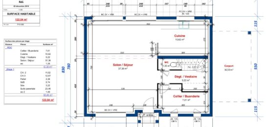
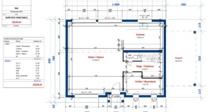
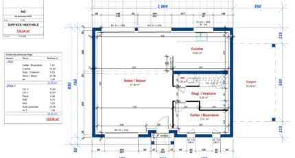
  • Surface maison 122 m2

🏡 Maison familiale sur-mesure de 122 m² à Sartrouville (78500) - Terrain de 300 m²

IDÉALEMENT SITUÉE - MAISON NEUVE 6 PIÈCES AVEC JARDIN ET GARAGE

À deux pas du Transilien J (Paris en 15 min), Maisons Évolution vous propose de concevoir et construire votre maison familiale sur-mesure dans un secteur très recherché de Sartrouville (78500).

🌟 Votre future maison R+Combles personnalisée :

Surface habitable : 122 m² sur un terrain de 300 m²

4 grandes chambres, double séjour lumineux, 2 salles de bains, cuisine ouverte

Garage intégré et possibilité de sous-sol total

Plans 100 % personnalisables selon vos envies, votre mode de vie et votre budget

Prestations modernes : chauffage performant, matériaux de qualité, finitions soignées

Accompagnement complet par Maisons Évolution Cormeilles-en-Parisis, constructeur reconnu pour son expertise et sa fiabilité

📍 Un cadre de vie idéal :

Quartier calme, résidentiel et recherché

Écoles, collèges et lycées à moins de 10 minutes à pied

Commerces, supermarchés, boulangeries, tennis et bureau de poste à proximité

Transports pratiques : Transilien J, RER A et C accessibles en quelques minutes

💰 Prix global indicatif : 455 000 €
(Terrain + maison - hors frais de notaire et frais annexes, visuel non contractuel)

📞 Contactez Caroline BETHERY au O6 26 57 38 84 pour une étude gratuite et personnalisée de votre projet.
Maisons Évolution Cormeilles-en-Parisis vous accompagne de la conception à la remise des clés de votre future maison.

Maisons Évolution - Votre maison, votre style, votre projet.

Mentions légales

Terrain proposé par un partenaire foncier selon disponibilités et autorisation de publicité au prix de 198 000 €. Hors droit d'enregistrement et frais de notaire. Maison proposée, avec un contrat de construction de maison individuelle, dans le cadre de la loi du 19/12/1990, au prix de 287 000 € (Hors branchements et raccordements, papiers peints, peintures, revêtement de sol dans les chambres, qui sont chiffrés dans les travaux qui restent à charge du client. Tarif modifiable sans préavis). Étiquette énergie : A. Différents modèles disponibles pour ce terrain. Assurances et garanties du constructeur comprises (RC professionnelle, décennale, dommage ouvrage).

Contactez l'agence de Cormeilles-en-Parisis

01 34 18 18 36

    * Champs obligatoires

    Vos informations sont traitées par HEXAOM et transmises à un conseiller commercial qui vous contactera afin de répondre à votre demande. Les plans et images présentés sur notre site sont la propriété d’HEXAOM et ne peuvent pas être reproduits sans son accord. Pour retrouver notre politique de protection des données personnelles et exercer vos droits conformément à la « loi informatique et liberté » cliquez-ici.