Maison neuve à
Saint-Georges-Motel (27710) Référence : RC2308934_6

Prix du projet : Maison avec Terrain

prix 267 800 €

  • 4 pièces
  • 4 chambres
  • Surface maison 110 m2

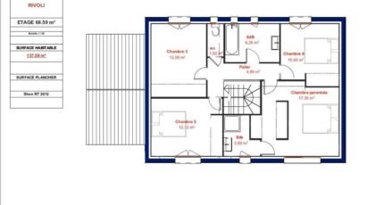
Maisons Evolution vous présente le modèle Rivoli d'une surface habitable de 137,59 m².

Retrouvez au rez-de-chaussée une entrée, un séjour/cuisine de plus de 43 m², un cellier, des WC indépendants, un bureau pouvant également servir de chambre sans oublier le garage attenant au cellier.

A l'étage, cette maison vous offre 3 chambres, une salle de bain, des toilettes indépendantes ainsi qu'une suite parentale ayant dressing et salle d'eau.

Annonce proposée par un Agent Commercial Partenaire.

Mentions légales

Terrain proposé par un partenaire foncier selon disponibilités et autorisation de publicité au prix de 65 000 €. Hors droit d'enregistrement et frais de notaire. Maison proposée, avec un contrat de construction de maison individuelle, dans le cadre de la loi du 19/12/1990, au prix de 202 800 € (Hors branchements et raccordements, papiers peints, peintures, revêtement de sol dans les chambres, qui sont chiffrés dans les travaux qui restent à charge du client. Tarif modifiable sans préavis). Étiquette énergie : A. Différents modèles disponibles pour ce terrain. Assurances et garanties du constructeur comprises (RC professionnelle, décennale, dommage ouvrage).

Contactez l'agence de Coignières

01 34 61 42 52

    * Champs obligatoires

    Vos informations sont traitées par HEXAOM et transmises à un conseiller commercial qui vous contactera afin de répondre à votre demande. Les plans et images présentés sur notre site sont la propriété d’HEXAOM et ne peuvent pas être reproduits sans son accord. Pour retrouver notre politique de protection des données personnelles et exercer vos droits conformément à la « loi informatique et liberté » cliquez-ici.