Maison neuve à
Saint-Georges-Motel (27710) Référence : RC2308934_3

Prix du projet : Maison avec Terrain

prix 195 200 €

  • 3 pièces
  • 2 chambres
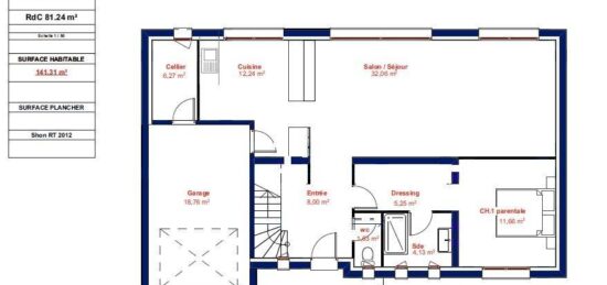
  • Surface maison 71 m2

Cette maison Design plain-pied de 70 m² se caractérise par 2 chambres, une pièce de vie traversante et lumineuse, ainsi qu'un garage accolé de 18 m². Ce modèle de maison compact propose un plan parfaitement optimisé, offrant une grande qualité de vie à ses occupants. La pièce de vie de 39 m² intègre la cuisine et l'entrée. Vous disposez également dans cette maison d'un cellier de 3.5 m² donnant l'accès au garage accolé. Côté nuit, deux chambres de plus de 10 m² sont situées de part et d'autre de la salle de bains, ainsi chacun dispose de son confort et de son intimité. La salle de bains est suffisamment spacieuse pour accueillir le WC. Cette maison vous inspire, venez la découvrir plus en détail auprès de nos équipes. Prenez rendez-vous !

Annonce proposée par un Agent Commercial Partenaire.

Mentions légales

Terrain proposé par un partenaire foncier selon disponibilités et autorisation de publicité au prix de 65 000 €. Hors droit d'enregistrement et frais de notaire. Maison proposée, avec un contrat de construction de maison individuelle, dans le cadre de la loi du 19/12/1990, au prix de 130 200 € (Hors branchements et raccordements, papiers peints, peintures, revêtement de sol dans les chambres, qui sont chiffrés dans les travaux qui restent à charge du client. Tarif modifiable sans préavis). Étiquette énergie : A. Différents modèles disponibles pour ce terrain. Assurances et garanties du constructeur comprises (RC professionnelle, décennale, dommage ouvrage).

Contactez l'agence de Coignières

01 34 61 42 52

    * Champs obligatoires

    Vos informations sont traitées par HEXAOM et transmises à un conseiller commercial qui vous contactera afin de répondre à votre demande. Les plans et images présentés sur notre site sont la propriété d’HEXAOM et ne peuvent pas être reproduits sans son accord. Pour retrouver notre politique de protection des données personnelles et exercer vos droits conformément à la « loi informatique et liberté » cliquez-ici.