Maison neuve à
Saint-Arnoult-en-Yvelines (78730) Référence : RC2435915_6

Prix du projet : Maison avec Terrain

prix 254 829 €

  • 5 pièces
  • 3 chambres
  • Surface maison 70 m2

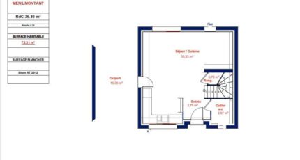
Maisons Evolution vous présente le modèle Ménilmontant.

Cette maison R+1 vous est proposée sur une surface habitable de 72,31 m².

Le rez-de-chaussée se compose d'une entrée desservant un cellier/toilette, un séjour/cuisine de plus de 30 m² sans oublier le carport attenant au séjour.

A l'étage, trois belles chambres et une salle de bain.

Annonce proposée par un Agent Commercial Partenaire.

Mentions légales

Terrain proposé par un partenaire foncier selon disponibilités et autorisation de publicité au prix de 102 820 €. Hors droit d'enregistrement et frais de notaire. Terrain + Maison proposés au prix de 254 829 € (Hors branchements et raccordements, papiers peints, peintures, revêtement de sol dans les chambres. Tarif modifiable sans préavis). Etiquette énergie : A. Différents modèles disponibles pour ce terrain. Assurances et garanties du constructeur (RC professionnelle, décennale, dommage ouvrage, garantie de remboursement de l'acompte, livraison à prix et délai convenu) : https://www.maisonsevolution.fr/mentions-legales/.

Contactez l'agence de Coignières

01 34 61 42 52

    * Champs obligatoires

    Vos informations sont traitées par HEXAOM et transmises à un conseiller commercial qui vous contactera afin de répondre à votre demande. Les plans et images présentés sur notre site sont la propriété d’HEXAOM et ne peuvent pas être reproduits sans son accord. Pour retrouver notre politique de protection des données personnelles et exercer vos droits conformément à la « loi informatique et liberté » cliquez-ici.