Maison neuve à
Réau (77550) Référence : SS2317230_5

Prix du projet : Maison avec Terrain

prix 354 900 €

  • 5 pièces
  • 4 chambres
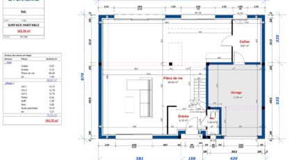
  • Surface maison 145 m2

Maison F5 (145 m²) en vente à Réau
EMPLACEMENT PRIVILÉGIÉ - MAISON 5 PIÈCES NEUVE
À vendre : proche du RER D (station Savigny-le-Temple-Nandy, 25 min de Paris), votre agence Maisons Evolution Mareuil-lès-Meaux est heureuse de vous présenter cette maison de 5 pièces de 145 m² et de 168 m² de terrain bénéficiant d'un emplacement privilégié dans Réau (77550). Son intérieur comporte quatre chambres, une cuisine et deux salles de bains.
Il s'agit d'une maison de 2 niveaux. Elle est neuve.
Le bien se situe dans un quartier convoité. On trouve l'École Primaire la Colombe à moins de 10 minutes à pied. Niveau transports, il y a la ligne de RER D (Savigny-Le-Temple-Nandy) ainsi que huit gares à moins de 10 minutes en voiture. On trouve une boulangerie à proximité.
Il est à vendre pour la somme de 354 900 €.
Prenez contact avec Stephanie SEBAG (06-45-49-40-63) pour toute information sur la maison ou sur les démarches à suivre. Maisons Evolution Mareuil-lès-Meaux vous accompagne dans tous vos projets immobiliers et à toutes les étapes de l'achat.

Annonce proposée par un Agent Commercial Partenaire.

Mentions légales

Terrain proposé par un partenaire foncier selon disponibilités et autorisation de publicité au prix de 94 900 €. Hors droit d'enregistrement et frais de notaire. Terrain + Maison proposés au prix de 260 000 € (Hors branchements et raccordements, papiers peints, peintures, revêtement de sol dans les chambres. Tarif modifiable sans préavis). Etiquette énergie : A. Différents modèles disponibles pour ce terrain. Assurances et garanties du constructeur (RC professionnelle, décennale, dommage ouvrage, garantie de remboursement de l'acompte, livraison à prix et délai convenu) : https://www.maisonsevolution.fr/mentions-legales/.

Contactez l'agence de Mareuil-lès-Meaux

06 22 93 94 71

    * Champs obligatoires

    Vos informations sont traitées par HEXAOM et transmises à un conseiller commercial qui vous contactera afin de répondre à votre demande. Les plans et images présentés sur notre site sont la propriété d’HEXAOM et ne peuvent pas être reproduits sans son accord. Pour retrouver notre politique de protection des données personnelles et exercer vos droits conformément à la « loi informatique et liberté » cliquez-ici.