Maison neuve à
Quincy-Voisins (77860) Référence : HEP2441002_1

Prix du projet : Maison avec Terrain

prix 304 700 €

  • 4 pièces
  • 3 chambres
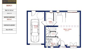
  • Surface maison 82 m2

VENTE : maison T4 (82 m²) à Quincy-Voisins
PROCHE CENTRE-VILLE - MAISON 4 PIÈCES NEUVE
Proche de la gare d'Esbly (Paris à 30 min avec le Transilien P), ayez le coup de coeur pour à vendre, proche du centre-ville de Quincy-Voisins (77860), cette maison de 4 pièces de 82 m² et de 186 m² de terrain.
Il s'agit d'une maison de 2 niveaux. Elle se divise en trois chambres, une cuisine et deux salles de bains. La maison est neuve.
On trouve des écoles maternelles et élémentaires à moins de 10 minutes à pied. Côté transports, il y a la ligne de RER A (Chessy-Marne-La-Vallée) ainsi que huit gares à moins de 10 minutes en voiture. Il y a un tennis, une bibliothèque, une boulangerie, trois commerces, une boucherie-charcuterie, un bureau de poste et une supérette à proximité de la maison.
Elle est proposée à l'achat pour 304700 €.
N'hésitez pas à prendre contact avec Hortencia EKOU 07-81-84-71-15 pour tout renseignement sur la maison, sur les modalités de vente ou sur les démarches à suivre. Maisons Evolution Villiers-sur-Marne vous accompagne dans tous vos projets immobiliers et dans toutes vos démarches.

Mentions légales

Terrain proposé par un partenaire foncier selon disponibilités et autorisation de publicité au prix de 130 000 €. Hors droit d'enregistrement et frais de notaire. Terrain + Maison proposés au prix de 304 700 € (Hors branchements et raccordements, papiers peints, peintures, revêtement de sol dans les chambres. Tarif modifiable sans préavis). Etiquette énergie : A. Différents modèles disponibles pour ce terrain. Assurances et garanties du constructeur (RC professionnelle, décennale, dommage ouvrage, garantie de remboursement de l'acompte, livraison à prix et délai convenu) : https://www.maisonsevolution.fr/mentions-legales/.

Contactez l'agence de Villiers-sur-Marne

01 49 30 03 19

    * Champs obligatoires

    Vos informations sont traitées par HEXAOM et transmises à un conseiller commercial qui vous contactera afin de répondre à votre demande. Les plans et images présentés sur notre site sont la propriété d’HEXAOM et ne peuvent pas être reproduits sans son accord. Pour retrouver notre politique de protection des données personnelles et exercer vos droits conformément à la « loi informatique et liberté » cliquez-ici.