Maison neuve à
Pontoise (95300) Référence : CB2395127_2

Prix du projet : Maison avec Terrain

prix 273 000 €

  • 5 pièces
  • 3 chambres
  • Surface maison 90 m2

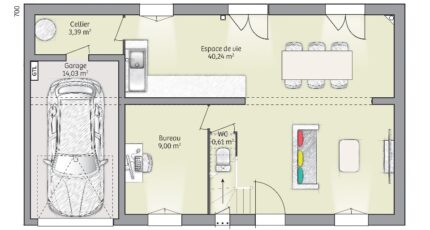
Projet de construction - Maison individuelle F5 sur mesure proche Pontoise (Bouconvillers)

Derniers lots disponibles - Frais de notaire réduits

Maisons Evolution Cormeilles-en-Parisis vous propose une opportunité rare :
la réalisation de votre maison individuelle neuve sur mesure, dans un lotissement recherché à Bouconvillers, à seulement 25 minutes de Pontoise et à 5 minutes de la gare de Chars (Transilien J - Paris Saint-Lazare en 55 min).

🏡 Votre maison personnalisable

Projet de maison F5 d'environ 90 m² habitables
5 pièces, dont 3 chambres
Maison à 2 niveaux
Cuisine et agencements entièrement personnalisables

Construction conforme aux normes RE 2020 pour un confort optimal et des économies d'énergie

🌿 Un terrain idéal pour la vie de famille
Terrain de 520 m², au sein d'un lotissement calme
Environnement verdoyant, idéal pour les enfants, les balades et les loisirs
Derniers lots disponibles sur la commune

🚆 Une localisation stratégique
Gare de Chars à proximité immédiate (ligne J)
Accès rapide à Paris, Pontoise, Cergy
Axes routiers A15, A16 et N14 à moins de 20 km

🛒 Commodités à proximité
Commerces de proximité
Équipements sportifs (tennis)
Plusieurs gares accessibles en moins de 10 minutes

💰 Prix indicatif du projet : à partir de 273 000 €
(terrain + maison - hors frais annexes)

➡️ Frais de notaire réduits sur le terrain
➡️ Accompagnement complet : étude personnalisée, démarches administratives, financement et suivi de construction

📞 Contactez Caroline BETHERY - O6 26 57 38 84
Maisons Evolution Cormeilles-en-Parisis
pour une étude gratuite et personnalisée de votre projet de construction.

Mentions légales

Terrain proposé par un partenaire foncier selon disponibilités et autorisation de publicité au prix de 84 900 €. Hors droit d'enregistrement et frais de notaire. Terrain + Maison proposés au prix de 273 000 € (Hors branchements et raccordements, papiers peints, peintures, revêtement de sol dans les chambres. Tarif modifiable sans préavis). Etiquette énergie : A. Différents modèles disponibles pour ce terrain. Assurances et garanties du constructeur (RC professionnelle, décennale, dommage ouvrage, garantie de remboursement de l'acompte, livraison à prix et délai convenu) : https://www.maisonsevolution.fr/mentions-legales/.

Contactez l'agence de Cormeilles-en-Parisis

01 34 18 18 36

    * Champs obligatoires

    Vos informations sont traitées par HEXAOM et transmises à un conseiller commercial qui vous contactera afin de répondre à votre demande. Les plans et images présentés sur notre site sont la propriété d’HEXAOM et ne peuvent pas être reproduits sans son accord. Pour retrouver notre politique de protection des données personnelles et exercer vos droits conformément à la « loi informatique et liberté » cliquez-ici.