Maison neuve à
Pontoise (95300) Référence : CB2395127_1

Prix du projet : Maison avec Terrain

prix 269 000 €

  • 6 pièces
  • 4 chambres
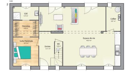
  • Surface maison 105 m2

Projet de construction - Maison individuelle sur mesure proche Pontoise (Bouconvillers)

Derniers lots disponibles - Frais de notaire réduits

Réalisez votre projet de vie avec Maisons Evolution, constructeur reconnu, dans un lotissement recherché à Bouconvillers, à seulement 25 minutes de Pontoise et à 5 minutes de la gare de Chars (ligne J - Paris Saint-Lazare en 55 min).

Nous vous proposons un projet de construction de maison individuelle sur mesure, implanté sur un terrain de 520 m², idéal pour les familles souhaitant allier qualité de vie, nature et accessibilité à Paris.

🏡 Un projet personnalisable selon vos envies

Maison individuelle neuve, conçue sur mesure
Exemple de projet : maison de 105 m², 6 pièces, dont 4 chambres
Maison à 2 niveaux
Cuisine, agencement et prestations personnalisables

Construction conforme aux normes RE 2020, confort moderne et économies d'énergie

🌿 Un cadre de vie privilégié
Lotissement calme et verdoyant
Environnement idéal pour les enfants, balades et activités de plein air
Derniers lots disponibles : opportunité rare dans le secteur

🚆 Une localisation stratégique

Gare de Chars à 5 minutes (Transilien J)
Paris accessible facilement
Accès rapide aux axes A15, A16 et N14
Cergy à 18 km

💰 Prix indicatif du projet : à partir de 269 000 €
(incluant terrain + maison - hors frais annexes)

➡️ Frais de notaire réduits sur le terrain
➡️ Accompagnement complet : étude de projet, démarches administratives, financement et suivi de construction

📞 Contactez Caroline BETHERY - O6 26 57 38 84
Maisons Evolution Cormeilles-en-Parisis
pour une étude gratuite et personnalisée de votre projet de construction.

Mentions légales

Terrain proposé par un partenaire foncier selon disponibilités et autorisation de publicité au prix de 84 900 €. Hors droit d'enregistrement et frais de notaire. Terrain + Maison proposés au prix de 269 000 € (Hors branchements et raccordements, papiers peints, peintures, revêtement de sol dans les chambres. Tarif modifiable sans préavis). Etiquette énergie : A. Différents modèles disponibles pour ce terrain. Assurances et garanties du constructeur (RC professionnelle, décennale, dommage ouvrage, garantie de remboursement de l'acompte, livraison à prix et délai convenu) : https://www.maisonsevolution.fr/mentions-legales/.

Contactez l'agence de Cormeilles-en-Parisis

01 34 18 18 36

    * Champs obligatoires

    Vos informations sont traitées par HEXAOM et transmises à un conseiller commercial qui vous contactera afin de répondre à votre demande. Les plans et images présentés sur notre site sont la propriété d’HEXAOM et ne peuvent pas être reproduits sans son accord. Pour retrouver notre politique de protection des données personnelles et exercer vos droits conformément à la « loi informatique et liberté » cliquez-ici.