Maison neuve à
Pomponne (77400) Référence : GB2302230_5

Prix du projet : Maison avec Terrain

prix 467 900 €

  • 6 pièces
  • 4 chambres
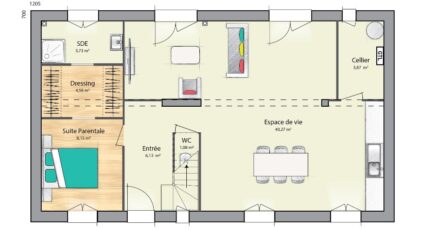
  • Surface maison 105 m2

Pomponne : maison de 6 pièces (105 m²) en vente
MAISON 6 PIÈCES NEUVE - PROCHE DE PARIS
Proche de la gare de Lagny-Thorigny (Paris à 25 min par le Transilien P), à vendre à Pomponne (77400), notre agence Maisons Evolution Mareuil-lès-Meaux est heureuse de vous présenter cette maison de 6 pièces de 105 m² et de 246 m² de terrain. Elle dispose de quatre chambres, d'une cuisine et de deux salles de bains.
Cette maison possède 2 niveaux. Elle est neuve.
L'École Primaire les Cornouillers est implantée à moins de 10 minutes à pied, tout comme une crèche. Niveau transports, il y a le RER A, E et B ainsi que six gares à moins de 10 minutes en voiture. On trouve un tennis et trois commerces dans les environs.
Elle est à vendre pour la somme de 467 900 €.
N'hésitez pas à prendre contact avec Guillaume BORDES (tél : 06-22-93-94-71) pour toute question sur cette maison.

Annonce proposée par un Agent Commercial Partenaire.

Mentions légales

Terrain proposé par un partenaire foncier selon disponibilités et autorisation de publicité au prix de 250 000 €. Hors droit d'enregistrement et frais de notaire. Terrain + Maison proposés au prix de 217 900 € (Hors branchements et raccordements, papiers peints, peintures, revêtement de sol dans les chambres. Tarif modifiable sans préavis). Etiquette énergie : A. Différents modèles disponibles pour ce terrain. Assurances et garanties du constructeur (RC professionnelle, décennale, dommage ouvrage, garantie de remboursement de l'acompte, livraison à prix et délai convenu) : https://www.maisonsevolution.fr/mentions-legales/.

Contactez l'agence de Mareuil-lès-Meaux

06 22 93 94 71

    * Champs obligatoires

    Vos informations sont traitées par HEXAOM et transmises à un conseiller commercial qui vous contactera afin de répondre à votre demande. Les plans et images présentés sur notre site sont la propriété d’HEXAOM et ne peuvent pas être reproduits sans son accord. Pour retrouver notre politique de protection des données personnelles et exercer vos droits conformément à la « loi informatique et liberté » cliquez-ici.