Maison neuve à
Plaisir (78370) Référence : JCL2309071_1

Prix du projet : Maison avec Terrain

prix 590 000 €

  • 5 pièces
  • 4 chambres
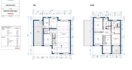
  • Surface maison 134 m2

Maisons Evolution vous présente le modèle Poissy. Cette maison très moderne R+1 à toit plat dispose de 137 m² habitables.

Le rez-de-chaussée se compose d'une entrée, d'un séjour/cuisine de plus de 60 m², d'une chambre, d'un cellier et d'un WC.

A l'étage, un palier dessert trois chambres, une salle de bain, des toilettes indépendants. Pour finir, une suite parentale vous y attend composée d'un dressing, d'une salle d'eau et d'une terrasse couverte. MAISONS EVOLUTION AU 06/04/65/51/79

Annonce proposée par un Agent Commercial Partenaire.

Mentions légales

Terrain proposé par un partenaire foncier selon disponibilités et autorisation de publicité au prix de 300 000 €. Hors droit d'enregistrement et frais de notaire. Maison proposée, avec un contrat de construction de maison individuelle, dans le cadre de la loi du 19/12/1990, au prix de 290 000 € (Hors branchements et raccordements, papiers peints, peintures, revêtement de sol dans les chambres, qui sont chiffrés dans les travaux qui restent à charge du client. Tarif modifiable sans préavis). Étiquette énergie : A. Différents modèles disponibles pour ce terrain. Assurances et garanties du constructeur comprises (RC professionnelle, décennale, dommage ouvrage).

Contactez l'agence de Coignières

01 34 61 42 52

    * Champs obligatoires

    Vos informations sont traitées par HEXAOM et transmises à un conseiller commercial qui vous contactera afin de répondre à votre demande. Les plans et images présentés sur notre site sont la propriété d’HEXAOM et ne peuvent pas être reproduits sans son accord. Pour retrouver notre politique de protection des données personnelles et exercer vos droits conformément à la « loi informatique et liberté » cliquez-ici.