Maison neuve à
Osny (95520) Référence : CB2324461_3

Prix du projet : Maison avec Terrain

prix 447 500 €

  • 6 pièces
  • 4 chambres
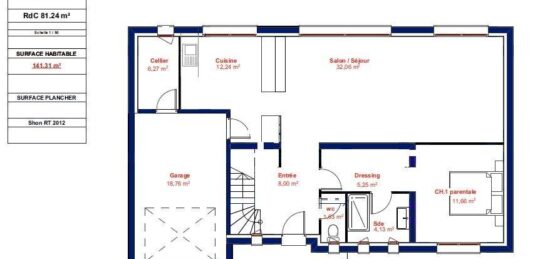
  • Surface maison 120 m2

🏡 Projet de construction sur-mesure à Osny (95520)

Construisez votre maison familiale 6 pièces avec Maisons Évolution !

Dans un quartier recherché et calme d'Osny, à seulement quelques minutes de la gare (Transilien J - Paris Saint-Lazare en 40 min), ce terrain de 450 m² vous permet de concevoir votre maison sur-mesure, entièrement adaptée à vos besoins et à ceux de votre famille.

🌿 Votre future maison sur-mesure :

🏠 Maison F6 de 120 m² sur 2 niveaux, entièrement personnalisable

🛏️ 4 chambres spacieuses, parfaites pour les enfants et les parents

🍳 Cuisine ouverte sur séjour lumineux, idéale pour les moments en famille

🛁 1 ou 2 salles de bains selon vos choix de personnalisation

🌞 Jardin privatif pour profiter des activités en extérieur

Avec Maisons Évolution, vous choisissez le plan, l'agencement et les finitions : chaque projet est unique et pensé pour correspondre parfaitement à votre mode de vie.

📍 Un emplacement idéal pour les familles :

5 établissements scolaires à moins de 10 minutes à pied (maternelles, primaires, collège, lycée)

Commerces de proximité : boulangeries, épiceries, supermarché, bureau de poste...

🎾 Activités sportives et loisirs accessibles facilement : tennis, parcs, bibliothèque

💰 Prix du projet : 447 500 €*

(*Terrain + maison, selon options et personnalisation.)

🤝 Un accompagnement complet pour votre projet

Avec Maisons Évolution Cormeilles-en-Parisis, bénéficiez d'un suivi personnalisé à chaque étape, de la conception à la remise des clés. Votre maison sera exactement comme vous l'avez imaginée !

📞 Contactez Caroline BETHERY dès maintenant au O6 26 57 38 84
et lancez votre projet de construction sur-mesure à Osny !

Mentions légales

Terrain proposé par un partenaire foncier selon disponibilités et autorisation de publicité au prix de 229 000 €. Hors droit d'enregistrement et frais de notaire. Maison proposée, avec un contrat de construction de maison individuelle, dans le cadre de la loi du 19/12/1990, au prix de 218 500 € (Hors branchements et raccordements, papiers peints, peintures, revêtement de sol dans les chambres, qui sont chiffrés dans les travaux qui restent à charge du client. Tarif modifiable sans préavis). Étiquette énergie : A. Différents modèles disponibles pour ce terrain. Assurances et garanties du constructeur comprises (RC professionnelle, décennale, dommage ouvrage).

Contactez l'agence de Cormeilles-en-Parisis

01 34 18 18 36

    * Champs obligatoires

    Vos informations sont traitées par HEXAOM et transmises à un conseiller commercial qui vous contactera afin de répondre à votre demande. Les plans et images présentés sur notre site sont la propriété d’HEXAOM et ne peuvent pas être reproduits sans son accord. Pour retrouver notre politique de protection des données personnelles et exercer vos droits conformément à la « loi informatique et liberté » cliquez-ici.