Maison neuve à
Orgeval (78630) Référence : CB2351058_1

Prix du projet : Maison avec Terrain

prix 919 900 €

  • 6 pièces
  • 5 chambres
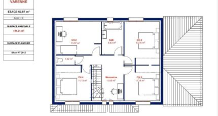
  • Surface maison 141 m2

Orgeval - Projet de construction : Maison 6 pièces de 141 m²
EMPLACEMENT PRIVILÉGIÉ - MAISON NEUVE À CONSTRUIRE

À Orgeval (78630), à proximité immédiate de la gare de Villennes-sur-Seine (Transilien J - Paris en 20 minutes), Maisons Evolution Cormeilles-en-Parisis vous propose un projet de construction d'une maison familiale de 6 pièces, sur un terrain d'exception de 1 000 m², idéalement situé dans un quartier résidentiel recherché.

Caractéristiques du projet :
Maison neuve sur 2 niveaux,
5 chambres spacieuses,
Une cuisine à aménager selon vos envies,
2 salles de bains,
Volumes lumineux et optimisés pour un confort moderne.

Cadre de vie privilégié :
Terrain en zone UDA, viabilisé et entièrement clôturé, prêt pour votre future maison,
À 10 minutes à pied du centre-ville, avec écoles, commerces et transports accessibles rapidement,
Écoles renommées à proximité : École Élémentaire Privée Sainte Jeanne d'Arc et École Élémentaire Louis Pasteur,
Excellente desserte routière et ferroviaire : à quelques minutes des autoroutes A13 et A14, gares de Poissy (futur RER E) et Villennes-sur-Seine,
Commerces et services à proximité : bibliothèque, boulangeries, supermarchés, épiceries et bureau de poste,

Quartier résidentiel calme et recherché offrant tranquillité et qualité de vie.

Ce projet de construction (terrain + maison, hors frais annexes) est proposé au prix de 919 900 €.

Pour obtenir toutes les informations, étudier votre projet ou être accompagné dans vos démarches, contactez :
Caroline BETHERY - O6 26 57 38 84

Maisons Evolution Cormeilles-en-Parisis vous guide à chaque étape, du terrain à la réalisation de votre maison sur-mesure haut de gamme.

Mentions légales

Terrain proposé par un partenaire foncier selon disponibilités et autorisation de publicité au prix de 650 000 €. Hors droit d'enregistrement et frais de notaire. Maison proposée, avec un contrat de construction de maison individuelle, dans le cadre de la loi du 19/12/1990, au prix de 269 900 € (Hors branchements et raccordements, papiers peints, peintures, revêtement de sol dans les chambres, qui sont chiffrés dans les travaux qui restent à charge du client. Tarif modifiable sans préavis). Étiquette énergie : A. Différents modèles disponibles pour ce terrain. Assurances et garanties du constructeur comprises (RC professionnelle, décennale, dommage ouvrage).

Contactez l'agence de Cormeilles-en-Parisis

01 34 18 18 36

    * Champs obligatoires

    Vos informations sont traitées par HEXAOM et transmises à un conseiller commercial qui vous contactera afin de répondre à votre demande. Les plans et images présentés sur notre site sont la propriété d’HEXAOM et ne peuvent pas être reproduits sans son accord. Pour retrouver notre politique de protection des données personnelles et exercer vos droits conformément à la « loi informatique et liberté » cliquez-ici.