Maison neuve à
Noisy-le-Grand (93160) Référence : GB2350650_2

Prix du projet : Maison avec Terrain

prix 572 900 €

  • 6 pièces
  • 4 chambres
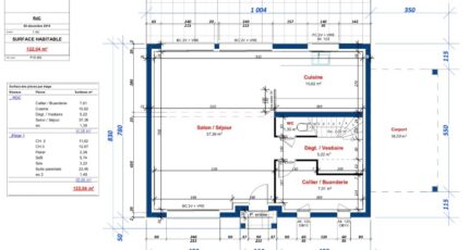
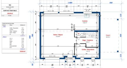
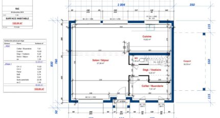
  • Surface maison 122 m2

Noisy-le-Grand : maison T6 (122 m²) à vendre
MAISON 6 PIÈCES NEUVE
À quelques minutes du RER A (station Noisy-le-Grand-Mont d'Est, 15 min de Paris), notre agence Maisons Evolution Mareuil-lès-Meaux est ravie de vous présenter en vente à Noisy-le-Grand (93160), cette maison de 6 pièces de 122 m².
Cette maison possède 2 niveaux. Son intérieur propose quatre chambres, une cuisine et deux salles de bains. Cette maison est neuve.
Le terrain de la propriété est de 188 m².
Il y a des écoles de tous types (de la maternelle au lycée) à moins de 10 minutes à pied, tout comme deux structures d'accueil pour les enfants en bas âge. Niveau transports en commun, on trouve les lignes de RER A, E et B ainsi que 26 gares à moins de 10 minutes en voiture. Il y a un bassin de natation, un tennis, des commerces, des boulangeries, trois supermarchés, deux supérettes et un bureau de poste à proximité.
Elle est à vendre pour la somme de 572 900 €.
Contactez notre agence (Guillaume BORDES : 06-22-93-94-71) pour toute information sur le bien, sur les démarches à suivre et sur les modalités de vente.

Annonce proposée par un Agent Commercial Partenaire.

Mentions légales

Terrain proposé par un partenaire foncier selon disponibilités et autorisation de publicité au prix de 329 000 €. Hors droit d'enregistrement et frais de notaire. Maison proposée, avec un contrat de construction de maison individuelle, dans le cadre de la loi du 19/12/1990, au prix de 243 900 € (Hors branchements et raccordements, papiers peints, peintures, revêtement de sol dans les chambres, qui sont chiffrés dans les travaux qui restent à charge du client. Tarif modifiable sans préavis). Étiquette énergie : A. Différents modèles disponibles pour ce terrain. Assurances et garanties du constructeur comprises (RC professionnelle, décennale, dommage ouvrage).

Contactez l'agence de Mareuil-lès-Meaux

06 22 93 94 71

    * Champs obligatoires

    Vos informations sont traitées par HEXAOM et transmises à un conseiller commercial qui vous contactera afin de répondre à votre demande. Les plans et images présentés sur notre site sont la propriété d’HEXAOM et ne peuvent pas être reproduits sans son accord. Pour retrouver notre politique de protection des données personnelles et exercer vos droits conformément à la « loi informatique et liberté » cliquez-ici.