Maison neuve à
Noisy-le-Grand (93160) Référence : GB2350650_1

Prix du projet : Maison avec Terrain

prix 569 500 €

  • 6 pièces
  • 5 chambres
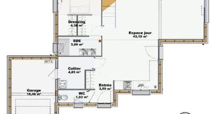
  • Surface maison 114 m2

VENTE d'une maison de 6 pièces (114 m²) à Noisy-le-Grand
MAISON 6 PIÈCES NEUVE
À vendre : à deux pas du RER A (station Noisy-le-Grand-Mont d'Est, 15 min de Paris), découvrez à Noisy-le-Grand (93160), cette maison de 6 pièces de 114 m².
C'est une maison de 2 niveaux. Son intérieur compte cinq chambres, une cuisine et deux salles de bains. Cette maison est neuve.
Le terrain du bien s'étend sur 188 m².
Tous les types d'écoles (de la maternelle au lycée) sont implantés à moins de 10 minutes à pied, tout comme deux crèches. Niveau transports, on trouve les lignes de RER A, E et B ainsi que 26 gares à moins de 10 minutes en voiture. Il y a un bassin de natation, un tennis, des commerces, des boulangeries, trois supermarchés, un bureau de poste et quatre boucheries-charcuteries dans les environs.
Elle est proposée à l'achat pour 569 500 €.
Contactez notre agence (BORDES Guillaume : 06-22-93-94-71) pour toute question sur cette maison et sur les modalités de vente. Concrétisez vos projets immobiliers avec Maisons Evolution Mareuil-lès-Meaux.

Annonce proposée par un Agent Commercial Partenaire.

Mentions légales

Terrain proposé par un partenaire foncier selon disponibilités et autorisation de publicité au prix de 329 000 €. Hors droit d'enregistrement et frais de notaire. Maison proposée, avec un contrat de construction de maison individuelle, dans le cadre de la loi du 19/12/1990, au prix de 240 500 € (Hors branchements et raccordements, papiers peints, peintures, revêtement de sol dans les chambres, qui sont chiffrés dans les travaux qui restent à charge du client. Tarif modifiable sans préavis). Étiquette énergie : A. Différents modèles disponibles pour ce terrain. Assurances et garanties du constructeur comprises (RC professionnelle, décennale, dommage ouvrage).

Contactez l'agence de Mareuil-lès-Meaux

06 22 93 94 71

    * Champs obligatoires

    Vos informations sont traitées par HEXAOM et transmises à un conseiller commercial qui vous contactera afin de répondre à votre demande. Les plans et images présentés sur notre site sont la propriété d’HEXAOM et ne peuvent pas être reproduits sans son accord. Pour retrouver notre politique de protection des données personnelles et exercer vos droits conformément à la « loi informatique et liberté » cliquez-ici.