Maison neuve à
Noiseau
(94880)
Référence :
SS2302095_2
Prix du projet : Maison avec Terrain
prix 465 000 €
- 6 pièces
- 5 chambres
- Surface maison 141 m2
Contactez Stéphanie SEBAG de l'agence Maisons Evolution de Mareuil-lès-Meaux au 06.45.49.40.63 pour avoir plus d'informations sur ce projet.
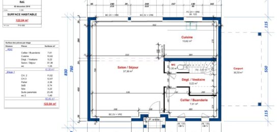
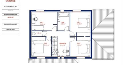
Découvrez cette grande et belle maison à étage de 142 m² habitables idéalement située sur la commune de NOISEAU
Elle est composée de 5 chambres dont une suite parentale avec salle d'eau et dressing au rez-de-chaussée, d'une seconde salle de bains, de deux WC séparés, d'un cellier, et d'un grand salon-séjour lumineux avec cuisine ouverte. Vous y trouverez également une véritable entrée avec placard. De plus, cette maison dispose d'un garage intégré.
Les plans sont entièrement modifiables selon vos souhaits, en agence ou visioconférence. Nous vous proposons un véritable accompagnement de qualité tout au long de votre projet.
Dessinons ensemble votre future maison !
Tel : 06.45.49.40.63
Annonce proposée par un Agent Commercial Partenaire.
Mentions légales
Terrain proposé par un partenaire foncier selon disponibilités et autorisation de publicité au prix de 210 000 €. Hors droit d'enregistrement et frais de notaire. Maison proposée, avec un contrat de construction de maison individuelle, dans le cadre de la loi du 19/12/1990, au prix de 255 000 € (Hors branchements et raccordements, papiers peints, peintures, revêtement de sol dans les chambres, qui sont chiffrés dans les travaux qui restent à charge du client. Tarif modifiable sans préavis). Étiquette énergie : A. Différents modèles disponibles pour ce terrain. Assurances et garanties du constructeur comprises (RC professionnelle, décennale, dommage ouvrage).Agence Maisons Evolution de Mareuil-lès-Meaux (77100)
- Téléphone :
- 06 22 93 94 71
- Adressse :
-
1 Rue Pierre de Ronsard
77100 Mareuil-lès-Meaux, France