Maison neuve à
Noiseau (94880) Référence : SS2302095_1

Prix du projet : Maison avec Terrain

prix 429 900 €

  • 6 pièces
  • 4 chambres
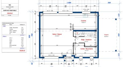
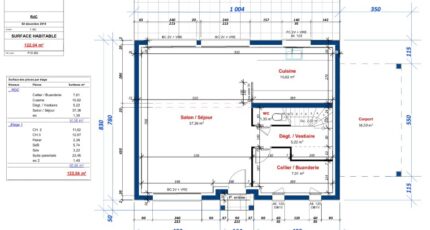
  • Surface maison 122 m2

Contactez Stéphanie SEBAG de l'agence Maisons Evolution de Mareuil-lès-Meaux au 06.45.49.40.63 pour avoir plus d'informations sur ce projet
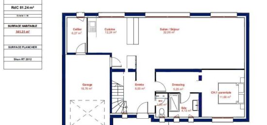
Découvrez cette très jolie maison moderne de 122 m² habitables, aux dernières normes énergétiques, idéalement située sur la commune de noiseau
Elle est composée de 3 grandes chambres dont une grande suite parentale avec salle d'eau, d'une seconde salle de bains, de deux WC séparés et d'un grand salon-séjour lumineux avec cuisine ouverte donnant sur un vaste cellier/buanderie. Il est possible d'y ajouter un garage ou un carport.
Les plans sont entièrement modifiables selon vos souhaits, en agence ou visioconférence. Nous vous proposons un véritable accompagnement de qualité tout au long de votre projet.
Dessinons ensemble votre future maison !
Tel : 06.45.49.40.

Annonce proposée par un Agent Commercial Partenaire.

Mentions légales

Terrain proposé par un partenaire foncier selon disponibilités et autorisation de publicité au prix de 210 000 €. Hors droit d'enregistrement et frais de notaire. Maison proposée, avec un contrat de construction de maison individuelle, dans le cadre de la loi du 19/12/1990, au prix de 219 900 € (Hors branchements et raccordements, papiers peints, peintures, revêtement de sol dans les chambres, qui sont chiffrés dans les travaux qui restent à charge du client. Tarif modifiable sans préavis). Étiquette énergie : A. Différents modèles disponibles pour ce terrain. Assurances et garanties du constructeur comprises (RC professionnelle, décennale, dommage ouvrage).

Contactez l'agence de Mareuil-lès-Meaux

06 22 93 94 71

    * Champs obligatoires

    Vos informations sont traitées par HEXAOM et transmises à un conseiller commercial qui vous contactera afin de répondre à votre demande. Les plans et images présentés sur notre site sont la propriété d’HEXAOM et ne peuvent pas être reproduits sans son accord. Pour retrouver notre politique de protection des données personnelles et exercer vos droits conformément à la « loi informatique et liberté » cliquez-ici.