Maison neuve à
Montreuil (93100) Référence : GB2350616_3

Prix du projet : Maison avec Terrain

prix 579 900 €

  • 5 pièces
  • 4 chambres
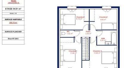
  • Surface maison 100 m2

VENTE d'une maison T5 (100 m²) à Montreuil
MAISON 5 PIÈCES NEUVE
À quelques minutes de la station Vincennes (Paris à 3 min par le RER A), à vendre à Montreuil (93100), Maisons Evolution Mareuil-lès-Meaux vous propose cette maison de 5 pièces de 100 m² et de 110 m² de terrain.
Cette maison compte 2 niveaux. Elle inclut quatre chambres, une cuisine et deux salles de bains. Cette maison est neuve.
Il y a tous les types d'établissements scolaires (de la maternelle au lycée) à moins de 10 minutes à pied, tout comme quatre crèches. Côté transports, on trouve cinq lignes de RER ainsi que 55 gares à moins de 10 minutes en voiture. Il y a une bibliothèque, des commerces, des boulangeries, des supermarchés, quatre supérettes et des épiceries à quelques minutes à peine.
Son prix de vente est de 579 900 €.
Contactez notre agence (BORDES Guillaume : 06-22-93-94-71) pour toute information sur cette maison, sur les démarches à suivre ou sur les modalités de vente. Maisons Evolution Mareuil-lès-Meaux est là pour vous accompagner dans tous vos projets immobiliers.

Annonce proposée par un Agent Commercial Partenaire.

Mentions légales

Terrain proposé par un partenaire foncier selon disponibilités et autorisation de publicité au prix de 390 000 €. Hors droit d'enregistrement et frais de notaire. Maison proposée, avec un contrat de construction de maison individuelle, dans le cadre de la loi du 19/12/1990, au prix de 189 900 € (Hors branchements et raccordements, papiers peints, peintures, revêtement de sol dans les chambres, qui sont chiffrés dans les travaux qui restent à charge du client. Tarif modifiable sans préavis). Étiquette énergie : A. Différents modèles disponibles pour ce terrain. Assurances et garanties du constructeur comprises (RC professionnelle, décennale, dommage ouvrage).

Contactez l'agence de Mareuil-lès-Meaux

06 22 93 94 71

    * Champs obligatoires

    Vos informations sont traitées par HEXAOM et transmises à un conseiller commercial qui vous contactera afin de répondre à votre demande. Les plans et images présentés sur notre site sont la propriété d’HEXAOM et ne peuvent pas être reproduits sans son accord. Pour retrouver notre politique de protection des données personnelles et exercer vos droits conformément à la « loi informatique et liberté » cliquez-ici.