Maison neuve à
Montigny-lès-Cormeilles (95370) Référence : CB2357968_2

Prix du projet : Maison avec Terrain

prix 408 390 €

  • 6 pièces
  • 4 chambres
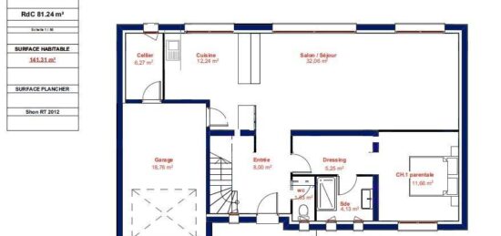
  • Surface maison 120 m2

MONTIGNY-LÈS-CORMEILLES (95370) - Maison familiale 6 pièces (120 m²) sur terrain de 255 m²

IDÉALEMENT SITUÉE - MAISON NEUVE SUR-MESURE PAR MAISONS EVOLUTION

Maisons Evolution Cormeilles-en-Parisis vous propose cette maison familiale de 6 pièces de 120 m², à construire sur l'un des trois terrains disponibles (255 m², 297 m² ou 519 m²), situés dans un secteur résidentiel recherché, en limite immédiate de Cormeilles-en-Parisis et de La Frette-sur-Seine.

À moins de 300 m et seulement 3 minutes à pied de la gare La Frette-Montigny (Ligne J) et au pied du RER C (station Montigny-Beauchamp, 30 min de Paris), vous rejoignez rapidement Paris, tout en profitant de la tranquillité d'un quartier pavillonnaire calme et verdoyant.

Le terrain plat et avec études de sol G1 réalisées, vous offre une liberté totale pour concevoir votre maison sur-mesure, parfaitement adaptée à votre famille et à votre style de vie.

Cette maison à 2 niveaux, entièrement personnalisable, pourra inclure :
4 chambres spacieuses, parfaites pour enfants et invités
Une cuisine aménageable sur-mesure
Une salle de bains et des rangements optimisés pour le quotidien familial
Un jardin sur le terrain, idéal pour les jeux des enfants ou les moments conviviaux
Un cadre de vie pratique et agréable pour toute la famille :
Écoles primaires et collèges à moins de 10 minutes à pied, ainsi que trois crèches
Commerces et services à proximité : boulangeries, supermarché, supérette, bureau de poste, épicerie
Loisirs et équipements sportifs : bibliothèque, bassin de natation, tennis
À proximité du Parc Départemental Schlumberger et du Fort de Cormeilles, pour des balades en famille dans un cadre naturel

Atouts du bien :
Terrain offrant la possibilité d'un projet entièrement personnalisé
Emplacement privilégié, à deux pas de la gare et des commerces
Environnement résidentiel calme et très recherché

Prix du projet : 408 390 €

Pour toute information sur les terrains, la maison ou les possibilités de personnalisat

Mentions légales

Terrain proposé par un partenaire foncier selon disponibilités et autorisation de publicité au prix de 195 000 €. Hors droit d'enregistrement et frais de notaire. Terrain + Maison proposés au prix de 408 390 € (Hors branchements et raccordements, papiers peints, peintures, revêtement de sol dans les chambres. Tarif modifiable sans préavis). Etiquette énergie : A. Différents modèles disponibles pour ce terrain. Assurances et garanties du constructeur (RC professionnelle, décennale, dommage ouvrage, garantie de remboursement de l'acompte, livraison à prix et délai convenu) : https://www.maisonsevolution.fr/mentions-legales/.

Contactez l'agence de Cormeilles-en-Parisis

01 34 18 18 36

    * Champs obligatoires

    Vos informations sont traitées par HEXAOM et transmises à un conseiller commercial qui vous contactera afin de répondre à votre demande. Les plans et images présentés sur notre site sont la propriété d’HEXAOM et ne peuvent pas être reproduits sans son accord. Pour retrouver notre politique de protection des données personnelles et exercer vos droits conformément à la « loi informatique et liberté » cliquez-ici.