Maison neuve à
Montesson (78360) Référence : CB2383876_3

Prix du projet : Maison avec Terrain

prix 613 200 €

  • 6 pièces
  • 5 chambres
  • Surface maison 120 m2

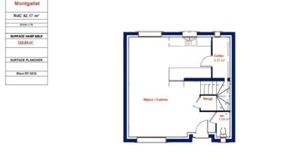
Projet de construction - Maison 6 pièces à Montesson

120 m² - 5 chambres - Terrain 340 m² - Maisons Evolution

Maisons Evolution Cormeilles-en-Parisis vous propose un projet de construction d'une maison neuve à étage, d'une surface de 120 m², sur un terrain de 340 m², idéalement situé à Montesson (78360).

🔹 Maison à construire - projet entièrement personnalisable
🔹 Plans, agencement et prestations adaptables selon vos besoins et votre budget

Le projet prévoit :

5 chambres spacieuses

Une grande pièce de vie lumineuse

Une cuisine fonctionnelle

2 salles de bains

Des prestations modernes et de qualité, conformes à la RE 2020

Maisons Evolution vous garantit :
✔ Contrat de construction CCMI
✔ Garanties constructeur (décennale, dommage-ouvrage, livraison)
✔ Accompagnement personnalisé, de l'étude du terrain à la remise des clés

À proximité du RER A Sartrouville (Paris en 15 min), des écoles et commerces, ce projet offre un cadre de vie idéal pour une famille.

💰 Prix du projet terrain + maison : 613 200 €
(Hors frais de notaire, viabilisation et frais annexes)

📞 Contact : Caroline BETHERY - O6 26 57 38 84
Concrétisez votre projet immobilier sur-mesure avec Maisons Evolution.

Mentions légales

Terrain proposé par un partenaire foncier selon disponibilités et autorisation de publicité au prix de 326 175 €. Hors droit d'enregistrement et frais de notaire. Terrain + Maison proposés au prix de 613 200 € (Hors branchements et raccordements, papiers peints, peintures, revêtement de sol dans les chambres. Tarif modifiable sans préavis). Etiquette énergie : A. Différents modèles disponibles pour ce terrain. Assurances et garanties du constructeur (RC professionnelle, décennale, dommage ouvrage, garantie de remboursement de l'acompte, livraison à prix et délai convenu) : https://www.maisonsevolution.fr/mentions-legales/.

Contactez l'agence de Cormeilles-en-Parisis

01 34 18 18 36

    * Champs obligatoires

    Vos informations sont traitées par HEXAOM et transmises à un conseiller commercial qui vous contactera afin de répondre à votre demande. Les plans et images présentés sur notre site sont la propriété d’HEXAOM et ne peuvent pas être reproduits sans son accord. Pour retrouver notre politique de protection des données personnelles et exercer vos droits conformément à la « loi informatique et liberté » cliquez-ici.