Maison neuve à
Maurecourt (78780) Référence : CB2351702_3

Prix du projet : Maison avec Terrain

prix 344 500 €

  • 5 pièces
  • 3 chambres
  • Surface maison 70 m2

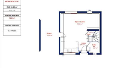
VENTE - Maison neuve 5 pièces - 70 m² - Maurecourt (78780)

IDÉALEMENT SITUÉE - PROJET SUR-MESURE AVEC MAISONS ÉVOLUTION - PRIMO-ACCÉDANTS ET INVESTISSEURS

Vous cherchez votre première maison ou un investissement rentable proche de Paris ? Découvrez cette maison neuve de 5 pièces et 70 m², construite sur un terrain de 450 m², parfaitement située à Maurecourt, dans un quartier calme et prisé, à seulement 25 minutes de Paris via le Transilien J.

Description du bien
Surface habitable : 70 m²
5 pièces dont 3 chambres
Cuisine modulable selon vos besoins
1 salle de bains
Maison neuve, sur 2 niveaux, avec possibilité de personnalisation

Terrain plat, clos et entièrement viabilisé (Eau - Électricité - Tout-à-l'égout)
Zone UB du PLU, offrant de belles possibilités de construction ou d'optimisation pour investissement locatif

Un emplacement stratégique
À moins de 10 minutes à pied : École Élémentaire et Maternelle, crèches
À quelques minutes en voiture ou à pied : RER A (20 min à pied), RER C et Transilien J
Commerces et loisirs

Parfait pour une famille, un primo-accédant souhaitant un cadre pratique et agréable, ou un investisseur recherchant un bien neuf à forte demande locative.

Prix de vente : 344 500 €

Pour en savoir plus sur cette maison, étudier votre projet ou vos options d'investissement, contactez Caroline BETHERY au O6 26 57 38 84
Maisons Évolution - Agence de Cormeilles-en-Parisis vous accompagne dans toutes les étapes de l'acquisition et de la conception de votre maison sur-mesure.

Mentions légales

Terrain proposé par un partenaire foncier selon disponibilités et autorisation de publicité au prix de 180 000 €. Hors droit d'enregistrement et frais de notaire. Terrain + Maison proposés au prix de 164 500 € (Hors branchements et raccordements, papiers peints, peintures, revêtement de sol dans les chambres. Tarif modifiable sans préavis). Etiquette énergie : A. Différents modèles disponibles pour ce terrain. Assurances et garanties du constructeur (RC professionnelle, décennale, dommage ouvrage, garantie de remboursement de l'acompte, livraison à prix et délai convenu) : https://www.maisonsevolution.fr/mentions-legales/.

Contactez l'agence de Cormeilles-en-Parisis

01 34 18 18 36

    * Champs obligatoires

    Vos informations sont traitées par HEXAOM et transmises à un conseiller commercial qui vous contactera afin de répondre à votre demande. Les plans et images présentés sur notre site sont la propriété d’HEXAOM et ne peuvent pas être reproduits sans son accord. Pour retrouver notre politique de protection des données personnelles et exercer vos droits conformément à la « loi informatique et liberté » cliquez-ici.