Maison neuve à
Maulette (78550) Référence : RC-00121

Prix du projet : Maison avec Terrain

prix 330 000 €

  • 6 pièces
  • 5 chambres
  • Surface maison 121 m2

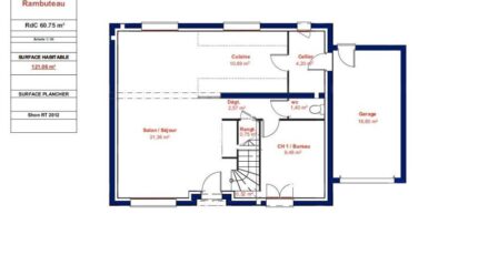
Le modèle Rambuteau est chic et sobre avec son jeu de couleur au niveau des enduits et son parement en pierre soulignant sa porte d'entrée. Cette maison vous offre une surface habitable de 121 m².
Au rez-de-chaussée vous trouverez un grand espace de vie composé d'un séjour/salon de 31 m² environ, d'une cuisine avec son cellier, d'un bureau et des toilettes indépendantes.
L'étage coin nuit ravira grands et petits, il se compose de 3 chambres et de leur salle de bains, d'une suite parentale avec sa salle d'eau, et des WC indépendants APPELEZ MOI POUR PLUS DE RENSEIGNEMENTS AU 06/04/65/51/79

Annonce proposée par un Agent Commercial Partenaire.

Mentions légales

Terrain proposé par un partenaire foncier selon disponibilités et autorisation de publicité au prix de 128 500 €. Hors droit d'enregistrement et frais de notaire. Terrain + Maison proposés au prix de 330 000 € (Hors branchements et raccordements, papiers peints, peintures, revêtement de sol dans les chambres. Tarif modifiable sans préavis). Etiquette énergie : A. Différents modèles disponibles pour ce terrain. Assurances et garanties du constructeur (RC professionnelle, décennale, dommage ouvrage, garantie de remboursement de l'acompte, livraison à prix et délai convenu) : https://www.maisonsevolution.fr/mentions-legales/.

Contactez l'agence de Coignières

01 34 61 42 52

    * Champs obligatoires

    Vos informations sont traitées par HEXAOM et transmises à un conseiller commercial qui vous contactera afin de répondre à votre demande. Les plans et images présentés sur notre site sont la propriété d’HEXAOM et ne peuvent pas être reproduits sans son accord. Pour retrouver notre politique de protection des données personnelles et exercer vos droits conformément à la « loi informatique et liberté » cliquez-ici.