Maison neuve à
Marly-le-Roi (78160) Référence : CB2341699_2

Prix du projet : Maison avec Terrain

prix 733 400 €

  • 6 pièces
  • 5 chambres
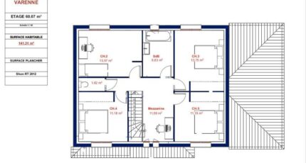
  • Surface maison 141 m2

Marly-le-Roi : projet de construction sur-mesure d'une maison de 6 pièces (141 m²)
Situation idéale

À seulement 35 minutes de Paris via le Transilien L et proche de la gare, notre agence Maisons Évolution Cormeilles-en-Parisis vous présente cette maison contemporaine de 141 m² nichée dans la charmante ville de Marly-le-Roi (78160) sur un terrain de 490m².

Répartie sur deux niveaux, cette maison offrira cinq chambres lumineuses, une cuisine moderne et deux salles de bains.

Le terrain s'étend sur une surface généreuse de 490 m².

Située dans un secteur prisé, à moins de 10 minutes à pied, vous trouverez des écoles allant de la maternelle au lycée ainsi qu'une crèche pour les tout-petits. Côté transports, la gare de Marly-le-Roi est facilement accessible, tandis qu'à proximité vous profiterez de multiples commodités comme une bibliothèque, une piscine, des terrains de tennis, des commerces.

Ce projet de construction de 141m² sur ce terrain de 490m² vous est proposé au prix de 733 400 €.

Pour tout renseignement sur le bien, les démarches du projet de construction ou les modalités de vente, n'hésitez pas à contacter Caroline BETHERY au O6 26 57 38 84. L'agence Maisons Évolution Cormeilles-en-Parisis est à vos côtés pour chaque étape de votre projet de maison sur-mesure.

Mentions légales

Terrain proposé par un partenaire foncier selon disponibilités et autorisation de publicité au prix de 463 500 €. Hors droit d'enregistrement et frais de notaire. Maison proposée, avec un contrat de construction de maison individuelle, dans le cadre de la loi du 19/12/1990, au prix de 269 900 € (Hors branchements et raccordements, papiers peints, peintures, revêtement de sol dans les chambres, qui sont chiffrés dans les travaux qui restent à charge du client. Tarif modifiable sans préavis). Étiquette énergie : A. Différents modèles disponibles pour ce terrain. Assurances et garanties du constructeur comprises (RC professionnelle, décennale, dommage ouvrage).

Contactez l'agence de Cormeilles-en-Parisis

01 34 18 18 36

    * Champs obligatoires

    Vos informations sont traitées par HEXAOM et transmises à un conseiller commercial qui vous contactera afin de répondre à votre demande. Les plans et images présentés sur notre site sont la propriété d’HEXAOM et ne peuvent pas être reproduits sans son accord. Pour retrouver notre politique de protection des données personnelles et exercer vos droits conformément à la « loi informatique et liberté » cliquez-ici.