Maison neuve à
Marines (95640) Référence : CB2402038_2

Prix du projet : Maison avec Terrain

prix 322 300 €

  • 6 pièces
  • 4 chambres
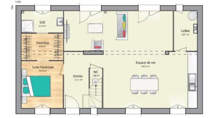
  • Surface maison 105 m2

MARINES (95640) - Projet de construction maison neuve 6 pièces - 105 m² - Terrain 220 m²

Dans un quartier recherché de Marines, à proximité immédiate des écoles, des commerces et des transports, Maisons Evolution Cormeilles-en-Parisis vous propose ce projet de construction d'une maison neuve de 105 m², idéale pour une famille.

Implantée sur un terrain plat et viabilisé de 220 m², cette maison à étage allie fonctionnalité, confort et modernité :

4 chambres spacieuses, dont possibilité de suite parentale
Belle pièce de vie lumineuse avec cuisine ouverte
2 salles de bains, pratiques pour la vie de famille
Agencement optimisé et volumes confortables

👉 Maison neuve conforme aux dernières normes énergétiques, pour un confort thermique optimal et des consommations maîtrisées.

🌟 Les atouts de Maisons Evolution

Constructeur de maisons individuelles reconnu depuis plus de 30 ans
Projet entièrement personnalisable : plans, surfaces, prestations, finitions
Contrat CCMI : sécurité, garanties, prix et délais encadrés
Accompagnement global : conception, permis de construire, suivi de chantier
Matériaux et équipements de qualité, sélectionnés pour leur durabilité

📍 Une localisation stratégique

À 20 minutes de Cergy
À 8 minutes de la gare de Chars (ligne J - Paris Saint-Lazare)
Plusieurs gares accessibles en moins de 10 minutes en voiture

🏫 Un cadre de vie pratique et recherché
Écoles accessibles à pied : maternelle, élémentaire et collège
Commerces et services à proximité : supermarché, boulangeries, bibliothèque, boucherie, épiceries

💰 Prix du projet terrain + maison : 322 272 €
(hors frais annexes)

📞 Contact : Caroline BETHERY - O6 26 57 38 84
Contactez-nous dès maintenant pour étudier votre projet de construction sur mesure à Marines et bénéficier de l'expertise et de l'accompagnement Maisons Evolution à chaque étape.

Mentions légales

Terrain proposé par un partenaire foncier selon disponibilités et autorisation de publicité au prix de 119 000 €. Hors droit d'enregistrement et frais de notaire. Terrain + Maison proposés au prix de 322 300 € (Hors branchements et raccordements, papiers peints, peintures, revêtement de sol dans les chambres. Tarif modifiable sans préavis). Etiquette énergie : A. Différents modèles disponibles pour ce terrain. Assurances et garanties du constructeur (RC professionnelle, décennale, dommage ouvrage, garantie de remboursement de l'acompte, livraison à prix et délai convenu) : https://www.maisonsevolution.fr/mentions-legales/.

Contactez l'agence de Cormeilles-en-Parisis

01 34 18 18 36

    * Champs obligatoires

    Vos informations sont traitées par HEXAOM et transmises à un conseiller commercial qui vous contactera afin de répondre à votre demande. Les plans et images présentés sur notre site sont la propriété d’HEXAOM et ne peuvent pas être reproduits sans son accord. Pour retrouver notre politique de protection des données personnelles et exercer vos droits conformément à la « loi informatique et liberté » cliquez-ici.