Maison neuve à
Marines (95640) Référence : CB2402038_1

Prix du projet : Maison avec Terrain

prix 312 700 €

  • 5 pièces
  • 3 chambres
  • Surface maison 90 m2

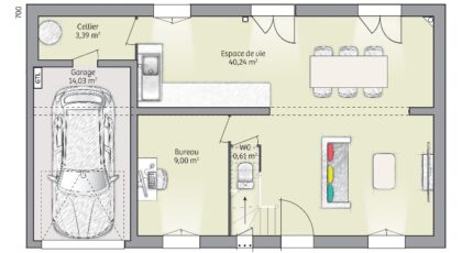
MARINES (95640) - Projet de construction maison neuve 5 pièces - 90 m² - Terrain 220 m²

Dans un quartier recherché de Marines, à proximité immédiate des commodités et des écoles, Maisons Evolution vous propose ce projet de construction d'une maison neuve F5 de 90 m², alliant confort, performance énergétique et personnalisation.

Implantée sur un terrain plat et viabilisé de 220 m², cette maison à étage offre une belle distribution des espaces :
3 chambres confortables
Une pièce de vie lumineuse avec cuisine ouverte
Une salle de bains moderne
Espaces optimisés pour une vie de famille agréable

👉 Maison neuve conforme aux dernières normes énergétiques, conçue pour réduire vos consommations et améliorer votre confort au quotidien.

🌟 Pourquoi choisir Maisons Evolution ?

Constructeur reconnu avec plus de 30 ans d'expérience
Maisons 100 % personnalisables (plans, aménagements, finitions)
Contrat CCMI : sécurité, prix et délais garantis
Accompagnement complet : conception, démarches administratives, suivi de chantier
Matériaux et prestations de qualité, sélectionnés avec soin

📍 Une situation idéale

À 20 minutes de Cergy
À 8 minutes de la gare de Chars (ligne J - Paris Saint-Lazare)
Plusieurs gares accessibles en moins de 10 minutes en voiture

🏫 Un environnement pratique et familial

Écoles à moins de 10 minutes à pied : maternelle, élémentaire et collège
Commerces de proximité : supermarché, boulangeries, bibliothèque, poste, épiceries

💰 Prix du projet terrain + maison : 312 700 €
Ce prix comprend le terrain et la construction de la maison (hors frais annexes).

📞 Contact : Caroline BETHERY - 06 26 57 38 84
Contactez-nous dès maintenant pour étudier votre projet de maison sur mesure à Marines et bénéficier de l'expertise Maisons Evolution à chaque étape de votre construction.

Mentions légales

Terrain proposé par un partenaire foncier selon disponibilités et autorisation de publicité au prix de 119 000 €. Hors droit d'enregistrement et frais de notaire. Terrain + Maison proposés au prix de 312 700 € (Hors branchements et raccordements, papiers peints, peintures, revêtement de sol dans les chambres. Tarif modifiable sans préavis). Etiquette énergie : A. Différents modèles disponibles pour ce terrain. Assurances et garanties du constructeur (RC professionnelle, décennale, dommage ouvrage, garantie de remboursement de l'acompte, livraison à prix et délai convenu) : https://www.maisonsevolution.fr/mentions-legales/.

Contactez l'agence de Cormeilles-en-Parisis

01 34 18 18 36

    * Champs obligatoires

    Vos informations sont traitées par HEXAOM et transmises à un conseiller commercial qui vous contactera afin de répondre à votre demande. Les plans et images présentés sur notre site sont la propriété d’HEXAOM et ne peuvent pas être reproduits sans son accord. Pour retrouver notre politique de protection des données personnelles et exercer vos droits conformément à la « loi informatique et liberté » cliquez-ici.