Maison neuve à
Mandres-les-Roses (94520) Référence : SS2297676_5

Prix du projet : Maison avec Terrain

prix 375 000 €

  • 6 pièces
  • 5 chambres
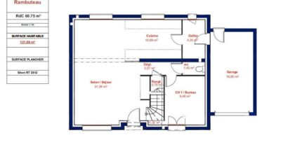
  • Surface maison 121 m2

VENTE : maison F6 (121 m²) à Mandres-les-Roses
EMPLACEMENT PRIVILÉGIÉ - MAISON 6 PIÈCES NEUVE
En vente : à côté de la station Boussy-Saint-Antoine (Paris à 30 min avec le RER D), nous vous proposons, bénéficiant d'un emplacement d'exception dans Mandres-les-Roses (94520), cette maison de 6 pièces de 121 m².
Il s'agit d'une maison de 2 niveaux. Son intérieur dispose de cinq chambres, d'une cuisine et de deux salles de bains. La maison est neuve.
Le terrain du bien est de 408 m².
Cette maison est située dans un quartier recherché. Le Collège Simone Veil, l'École Maternelle la Ferme de Monsieur et l'École Élémentaire d'Application les Charmilles sont implantés à moins de 10 minutes à pied. Niveau transports en commun, il y a le RER D, A et C ainsi que 11 gares à moins de 10 minutes en voiture. Il y a une bibliothèque, deux tennis, des commerces, trois boulangeries, un supermarché, quatre épiceries et une boucherie-charcuterie dans les environs.
Elle est à vendre pour la somme de 375 000 €.
Prenez contact avec notre agence (SEBAG Stephanie : 06-45-49-40-63) pour toute information sur la propriété, sur les modalités de vente ou sur les démarches à suivre. Maisons Evolution Mareuil-lès-Meaux est là pour vous accompagner à toutes les étapes de votre projet.

Annonce proposée par un Agent Commercial Partenaire.

Mentions légales

Terrain proposé par un partenaire foncier selon disponibilités et autorisation de publicité au prix de 185 000 €. Hors droit d'enregistrement et frais de notaire. Terrain + Maison proposés au prix de 190 000 € (Hors branchements et raccordements, papiers peints, peintures, revêtement de sol dans les chambres. Tarif modifiable sans préavis). Etiquette énergie : A. Différents modèles disponibles pour ce terrain. Assurances et garanties du constructeur (RC professionnelle, décennale, dommage ouvrage, garantie de remboursement de l'acompte, livraison à prix et délai convenu) : https://www.maisonsevolution.fr/mentions-legales/.

Contactez l'agence de Mareuil-lès-Meaux

06 22 93 94 71

    * Champs obligatoires

    Vos informations sont traitées par HEXAOM et transmises à un conseiller commercial qui vous contactera afin de répondre à votre demande. Les plans et images présentés sur notre site sont la propriété d’HEXAOM et ne peuvent pas être reproduits sans son accord. Pour retrouver notre politique de protection des données personnelles et exercer vos droits conformément à la « loi informatique et liberté » cliquez-ici.