Maison neuve à
Mandres-les-Roses (94520) Référence : SS2297676_2

Prix du projet : Maison avec Terrain

prix 449 900 €

  • 6 pièces
  • 5 chambres
  • Surface maison 141 m2

Maison de 6 pièces (141 m²) à vendre à Mandres-les-Roses
EMPLACEMENT PRIVILÉGIÉ - MAISON 6 PIÈCES NEUVE
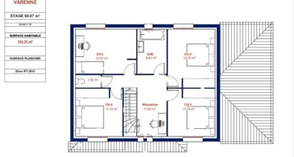
À proximité du RER D (station Boussy-Saint-Antoine, 30 min de Paris), à vendre bénéficiant d'un emplacement privilégié dans Mandres-les-Roses (94520), Maisons Evolution Mareuil-lès-Meaux vous présente cette maison de 6 pièces de 141 m² et de 408 m² de terrain. Elle comporte cinq chambres, une cuisine et deux salles de bains.
Cette maison compte 2 niveaux. Elle est neuve.
La maison est située dans un quartier convoité. On trouve le Collège Simone Veil, l'École Maternelle la Ferme de Monsieur et l'École Élémentaire d'Application les Charmilles à moins de 10 minutes à pied. Côté transports, il y a les lignes de RER D, A et C ainsi que 11 gares à moins de 10 minutes en voiture. Il y a une bibliothèque, deux tennis, des commerces, trois boulangeries, un supermarché, une boucherie-charcuterie et un bureau de poste dans les environs.
Elle est proposée à l'achat pour 449 900 €.
N'hésitez pas à prendre contact avec Stephanie SEBAG (06-45-49-40-63) pour toute question sur la maison ou sur les démarches à suivre. Maisons Evolution Mareuil-lès-Meaux est là pour vous accompagner à toutes les étapes de votre projet.

Annonce proposée par un Agent Commercial Partenaire.

Mentions légales

Terrain proposé par un partenaire foncier selon disponibilités et autorisation de publicité au prix de 185 000 €. Hors droit d'enregistrement et frais de notaire. Maison proposée, avec un contrat de construction de maison individuelle, dans le cadre de la loi du 19/12/1990, au prix de 264 900 € (Hors branchements et raccordements, papiers peints, peintures, revêtement de sol dans les chambres, qui sont chiffrés dans les travaux qui restent à charge du client. Tarif modifiable sans préavis). Étiquette énergie : A. Différents modèles disponibles pour ce terrain. Assurances et garanties du constructeur comprises (RC professionnelle, décennale, dommage ouvrage).

Contactez l'agence de Mareuil-lès-Meaux

06 22 93 94 71

    * Champs obligatoires

    Vos informations sont traitées par HEXAOM et transmises à un conseiller commercial qui vous contactera afin de répondre à votre demande. Les plans et images présentés sur notre site sont la propriété d’HEXAOM et ne peuvent pas être reproduits sans son accord. Pour retrouver notre politique de protection des données personnelles et exercer vos droits conformément à la « loi informatique et liberté » cliquez-ici.