Maison neuve à
Lumigny-Nesles-Ormeaux (77540) Référence : SS2373291_2

Prix du projet : Maison avec Terrain

prix 274 000 €

  • 6 pièces
  • 5 chambres
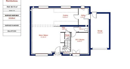
  • Surface maison 121 m2

Contactez Stéphanie SEBAG de l'agence Maisons Evolution de Mareuil-lès-Meaux au 06.45.49.40.63 pour avoir plus d'informations sur ce projet.
Très jolie maison à étage de 124 m² habitables avec garage accolé idéalement située sur la commune de LUMIOGNY NESLES ORMEAUX
Elle est composée de 5 chambres au total dont une grande suite parentale avec salle d'eau, de 3 salles de bains au total, de deux WC séparés et d'un grand salon-séjour lumineux avec cuisine ouverte donnant sur un cellier puis sur le garage.
Les plans sont entièrement modifiables selon vos souhaits, en agence ou visioconférence. Nous vous proposons un véritable accompagnement de qualité tout au long de votre projet.
Dessinons ensemble votre future maison !
Tel : 06.45.49.40.63

Annonce proposée par un Agent Commercial Partenaire.

Mentions légales

Terrain proposé par un partenaire foncier selon disponibilités et autorisation de publicité au prix de 94 000 €. Hors droit d'enregistrement et frais de notaire. Terrain + Maison proposés au prix de 180 000 € (Hors branchements et raccordements, papiers peints, peintures, revêtement de sol dans les chambres. Tarif modifiable sans préavis). Etiquette énergie : A. Différents modèles disponibles pour ce terrain. Assurances et garanties du constructeur (RC professionnelle, décennale, dommage ouvrage, garantie de remboursement de l'acompte, livraison à prix et délai convenu) : https://www.maisonsevolution.fr/mentions-legales/.

Contactez l'agence de Mareuil-lès-Meaux

06 22 93 94 71

    * Champs obligatoires

    Vos informations sont traitées par HEXAOM et transmises à un conseiller commercial qui vous contactera afin de répondre à votre demande. Les plans et images présentés sur notre site sont la propriété d’HEXAOM et ne peuvent pas être reproduits sans son accord. Pour retrouver notre politique de protection des données personnelles et exercer vos droits conformément à la « loi informatique et liberté » cliquez-ici.