Maison neuve à
Lorrez-le-Bocage-Préaux (77710) Référence : SS2294478_3

Prix du projet : Maison avec Terrain

prix 229 500 €

  • 6 pièces
  • 5 chambres
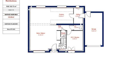
  • Surface maison 121 m2

Maison F6 (121 m²) en vente à Lorrez-le-Bocage-Préaux
EMPLACEMENT PRIVILÉGIÉ - MAISON 6 PIÈCES NEUVE
À vendre à deux pas de Sens, notre agence Maisons Evolution Mareuil-lès-Meaux est ravie de vous proposer, bénéficiant d'un emplacement d'exception dans Lorrez-le-Bocage-Préaux (77710), cette maison de 6 pièces de 121 m². Elle propose cinq chambres, une cuisine et deux salles de bains.
Le terrain de la propriété est de 291 m².
Cette maison compte 2 niveaux. Elle est neuve.
La maison est située dans un secteur attractif. Il y a l'École Élémentaire les Chenevières, l'École Maternelle les Chenevières et le Collège Jacques Prévert à moins de 10 minutes à pied. On trouve une bibliothèque, une boulangerie, un supermarché, une boucherie-charcuterie, deux épiceries et un bureau de poste dans les environs.
Son prix de vente est de 229 500 €.
Contactez Stephanie SEBAG (tél : 06-45-49-40-63) pour tout renseignement sur la maison. Maisons Evolution Mareuil-lès-Meaux est là pour vous accompagner dans toutes vos démarches.

Annonce proposée par un Agent Commercial Partenaire.

Mentions légales

Terrain proposé par un partenaire foncier selon disponibilités et autorisation de publicité au prix de 49 500 €. Hors droit d'enregistrement et frais de notaire. Terrain + Maison proposés au prix de 180 000 € (Hors branchements et raccordements, papiers peints, peintures, revêtement de sol dans les chambres. Tarif modifiable sans préavis). Etiquette énergie : A. Différents modèles disponibles pour ce terrain. Assurances et garanties du constructeur (RC professionnelle, décennale, dommage ouvrage, garantie de remboursement de l'acompte, livraison à prix et délai convenu) : https://www.maisonsevolution.fr/mentions-legales/.

Contactez l'agence de Mareuil-lès-Meaux

06 22 93 94 71

    * Champs obligatoires

    Vos informations sont traitées par HEXAOM et transmises à un conseiller commercial qui vous contactera afin de répondre à votre demande. Les plans et images présentés sur notre site sont la propriété d’HEXAOM et ne peuvent pas être reproduits sans son accord. Pour retrouver notre politique de protection des données personnelles et exercer vos droits conformément à la « loi informatique et liberté » cliquez-ici.