Maison neuve à
Les Clayes-sous-Bois (78340) Référence : CB2352330_1

Prix du projet : Maison avec Terrain

prix 400 500 €

  • 6 pièces
  • 4 chambres
  • Surface maison 109 m2

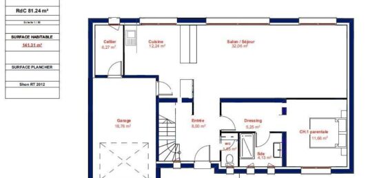
Maison neuve 6 pièces - 109 m² personnalisables

Les Clayes-sous-Bois (78340) - À deux pas de la gare Villepreux-Les Clayes

À quelques minutes de Paris, découvrez cette maison neuve de 6 pièces de 109 m², implantée sur un terrain de 230 m², dans un quartier résidentiel recherché des Clayes-sous-Bois. Ce bien constitue un projet idéal pour une maison individuelle sur-mesure, entièrement personnalisable avec Maisons Evolution.

Répartie sur deux niveaux, la maison offre :
4 chambres
Une cuisine modulable selon vos envies
2 salles de bains
Des espaces de vie lumineux et optimisés
Chaque détail peut être adapté pour correspondre à vos besoins et votre style de vie.

Un emplacement privilégié pour un quotidien pratique et agréable
À moins de 10 minutes à pied : écoles maternelle, élémentaire et collège
Gare Villepreux-Les Clayes à proximité (Paris-Montparnasse en 40 minutes)
Commerces, boulangeries, supermarché, poissonnerie et épiceries
Bibliothèque, tennis, bassin de natation
Marché Avenue Leclerc animé chaque semaine

Un projet sur-mesure accompagné par Maisons Evolution
Maisons Evolution Cormeilles-en-Parisis vous accompagne à chaque étape pour concevoir une maison neuve adaptée à vos attentes :
Architecture personnalisée et finitions de qualité
Plans modulables et optimisation des volumes
Suivi complet du projet, de la conception à la livraison clé en main

Prix : 400 500 €

Pour en savoir plus ou discuter des modalités de votre projet de construction, contactez :
Caroline BETHERY - O6 26 57 38 84

Mentions légales

Terrain proposé par un partenaire foncier selon disponibilités et autorisation de publicité au prix de 209 000 €. Hors droit d'enregistrement et frais de notaire. Terrain + Maison proposés au prix de 191 500 € (Hors branchements et raccordements, papiers peints, peintures, revêtement de sol dans les chambres. Tarif modifiable sans préavis). Etiquette énergie : A. Différents modèles disponibles pour ce terrain. Assurances et garanties du constructeur (RC professionnelle, décennale, dommage ouvrage, garantie de remboursement de l'acompte, livraison à prix et délai convenu) : https://www.maisonsevolution.fr/mentions-legales/.

Contactez l'agence de Cormeilles-en-Parisis

01 34 18 18 36

    * Champs obligatoires

    Vos informations sont traitées par HEXAOM et transmises à un conseiller commercial qui vous contactera afin de répondre à votre demande. Les plans et images présentés sur notre site sont la propriété d’HEXAOM et ne peuvent pas être reproduits sans son accord. Pour retrouver notre politique de protection des données personnelles et exercer vos droits conformément à la « loi informatique et liberté » cliquez-ici.