Maison neuve à
Le Mesnil-le-Roi (78600) Référence : CB2351036_2

Prix du projet : Maison avec Terrain

prix 704 500 €

  • 6 pièces
  • 5 chambres
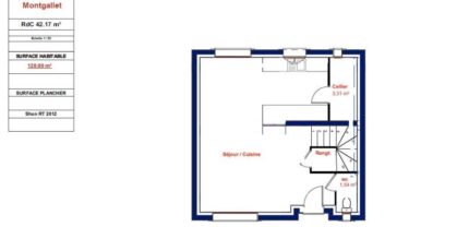
  • Surface maison 120 m2

Le Mesnil-le-Roi - Projet de construction : Maison 6 pièces de 120 m²
EMPLACEMENT PRIVILÉGIÉ - MAISON NEUVE À CONSTRUIRE

À deux pas de la gare de Maisons-Laffitte, Maisons Evolution Cormeilles-en-Parisis vous propose un projet de construction d'une maison familiale de 120 m², implantée sur un terrain de 300 m², idéalement situé au Mesnil-le-Roi (78600).

Ce projet de maison neuve, sur 2 niveaux, prévoit :
5 chambres spacieuses,
Une cuisine à aménager selon vos besoins,
2 salles de bains,
Des volumes pensés pour offrir confort, luminosité et fonctionnalité.

Situé dans un secteur très recherché, ce projet bénéficie d'un cadre privilégié :
Écoles de la maternelle au lycée à moins de 10 minutes à pied, ainsi qu'une structure d'accueil pour les tout-petits,
RER A et transilien accessibles, permettant de rejoindre Paris en 20 minutes,
Proximité de nombreux commerces et services
Marché local dynamique sur la place du Marché.

Ce projet de construction (terrain + maison, hors frais annexes) est proposé au prix de 704 500 €.

Pour obtenir plus d'informations, recevoir une étude personnalisée ou être accompagné dans vos démarches, contactez :
Caroline BETHERY - O6 26 57 38 84

Mentions légales

Terrain proposé par un partenaire foncier selon disponibilités et autorisation de publicité au prix de 420 000 €. Hors droit d'enregistrement et frais de notaire. Maison proposée, avec un contrat de construction de maison individuelle, dans le cadre de la loi du 19/12/1990, au prix de 284 500 € (Hors branchements et raccordements, papiers peints, peintures, revêtement de sol dans les chambres, qui sont chiffrés dans les travaux qui restent à charge du client. Tarif modifiable sans préavis). Étiquette énergie : A. Différents modèles disponibles pour ce terrain. Assurances et garanties du constructeur comprises (RC professionnelle, décennale, dommage ouvrage).

Contactez l'agence de Cormeilles-en-Parisis

01 34 18 18 36

    * Champs obligatoires

    Vos informations sont traitées par HEXAOM et transmises à un conseiller commercial qui vous contactera afin de répondre à votre demande. Les plans et images présentés sur notre site sont la propriété d’HEXAOM et ne peuvent pas être reproduits sans son accord. Pour retrouver notre politique de protection des données personnelles et exercer vos droits conformément à la « loi informatique et liberté » cliquez-ici.