Maison neuve à
Houdan (78550) Référence : JCL2450032_1

Prix du projet : Maison avec Terrain

prix 278 500 €

  • 4 pièces
  • 3 chambres
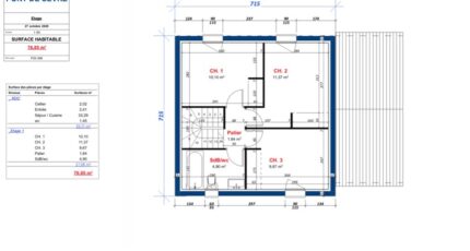
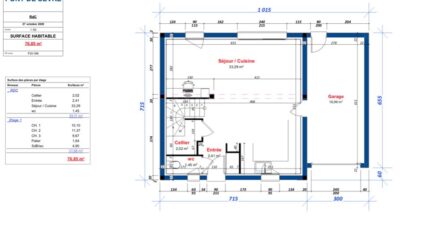
  • Surface maison 74 m2

Au rez-de chaussée, vaste espace jour avec garage attenant. A l'étage, trois chambres et une salle d'eau. L'ensemble du design, des équipements et le mode de chauffage personnalisables à l'envi : voilà ce que vous propose PONT DE SÈVRES, maison R+1 de Maisons Evolution. Conçue pour s'adapter aux environnements urbains, cette demeure compacte de 74 m² peut être agrémentée par une terrasse. Effet Wahou garanti pour cette demeure.
Le modèle d'inspiration PONT DE SÈVRES est totalement adaptable à vos envies et besoins et personnalisable grâce à de nombreuses options de finition. Nous consulter.

Mentions légales

Terrain proposé par un partenaire foncier selon disponibilités et autorisation de publicité au prix de 119 500 €. Hors droit d'enregistrement et frais de notaire. Terrain + Maison proposés au prix de 278 500 € (Hors branchements et raccordements, papiers peints, peintures, revêtement de sol dans les chambres. Tarif modifiable sans préavis). Etiquette énergie : A. Différents modèles disponibles pour ce terrain. Assurances et garanties du constructeur (RC professionnelle, décennale, dommage ouvrage, garantie de remboursement de l'acompte, livraison à prix et délai convenu) : https://www.maisonsevolution.fr/mentions-legales/.

Contactez l'agence de Coignières

01 34 61 42 52

    * Champs obligatoires

    Vos informations sont traitées par HEXAOM et transmises à un conseiller commercial qui vous contactera afin de répondre à votre demande. Les plans et images présentés sur notre site sont la propriété d’HEXAOM et ne peuvent pas être reproduits sans son accord. Pour retrouver notre politique de protection des données personnelles et exercer vos droits conformément à la « loi informatique et liberté » cliquez-ici.