Maison neuve à
Herblay (95220) Référence : CB2307602_1

Prix du projet : Maison avec Terrain

prix 414 500 €

  • 6 pièces
  • 4 chambres
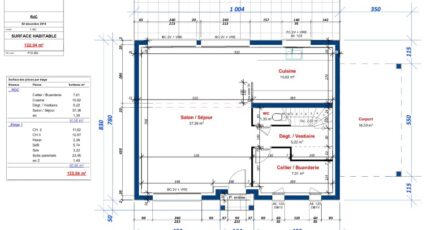
  • Surface maison 122 m2

PROJET DE CONSTRUCTION - MAISON 6 PIÈCES (122 m²) À HERBLAY (95220)

Construisez la maison de vos rêves dans un secteur privilégié, à seulement 20 minutes de Paris !
Maisons Évolution vous propose un projet de construction sur-mesure d'une maison moderne de 6 pièces (122 m²) sur un terrain de 400 m², idéalement située sur les Coteaux d'Herblay.

Votre future maison :

Surface habitable : 122 m² sur 2 niveaux

4 chambres spacieuses, possibilité de suite parentale

Grande pièce de vie lumineuse avec cuisine ouverte

2 salles de bains modernes

Maison entièrement personnalisable : plans, agencement et finitions selon vos envies

Conçue selon les normes RE2020 pour confort, performance énergétique et durabilité

Un emplacement idéal :

Quartier calme et convoité, proche des commodités

Écoles, crèches et collège accessibles en moins de 10 minutes à pied

Commerces, supermarché, boulangeries, boucheries-charcuteries et bureau de poste à proximité

Gare Herblay à moins de 10min à pieds pour des trajets simples vers Paris

Prix global du projet : 414 500 € (terrain + maison, hors frais annexes)

📞 Contactez Caroline BETHERY au O6 26 57 38 84 pour obtenir toutes les informations sur ce projet et concevoir votre maison sur-mesure avec Maisons Évolution.

Mentions légales

Terrain proposé par un partenaire foncier selon disponibilités et autorisation de publicité au prix de 189 000 €. Hors droit d'enregistrement et frais de notaire. Maison proposée, avec un contrat de construction de maison individuelle, dans le cadre de la loi du 19/12/1990, au prix de 225 500 € (Hors branchements et raccordements, papiers peints, peintures, revêtement de sol dans les chambres, qui sont chiffrés dans les travaux qui restent à charge du client. Tarif modifiable sans préavis). Étiquette énergie : A. Différents modèles disponibles pour ce terrain. Assurances et garanties du constructeur comprises (RC professionnelle, décennale, dommage ouvrage).

Contactez l'agence de Cormeilles-en-Parisis

01 34 18 18 36

    * Champs obligatoires

    Vos informations sont traitées par HEXAOM et transmises à un conseiller commercial qui vous contactera afin de répondre à votre demande. Les plans et images présentés sur notre site sont la propriété d’HEXAOM et ne peuvent pas être reproduits sans son accord. Pour retrouver notre politique de protection des données personnelles et exercer vos droits conformément à la « loi informatique et liberté » cliquez-ici.