Maison neuve à
Guignes (77390) Référence : GB2452913_8

Prix du projet : Maison avec Terrain

prix 279 550 €

  • 6 pièces
  • 4 chambres
  • Surface maison 105 m2

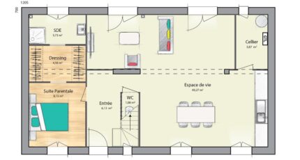
Maison de 6 pièces (105 m²) à vendre à Guignes
À proximité du Transilien P (gare de Verneuil-l'Étang, 30 min de Paris), nous sommes ravis de vous proposer cette maison de 6 pièces de 105 m² en vente à Guignes (77390). Son intérieur comporte quatre chambres, une cuisine et deux salles de bains.
Le terrain du bien s'étend sur 334 m².
C'est une maison de 2 niveaux. Elle est neuve.
L'École Élémentaire André Siméon et l'École Maternelle André Siméon sont implantées dans la commune. Niveau transports en commun, il y a deux gares (Verneuil-l'Étang et Mormant) à moins de 10 minutes en voiture. On trouve trois commerces, un bureau de poste et deux épiceries dans les environs.
Son prix de vente est de 279 550 €.
Contactez Guillaume BORDES (tél : 06-22-93-94-71) pour plus de renseignements sur cette maison ou sur les modalités de vente.

Annonce proposée par un Agent Commercial Partenaire.

Mentions légales

Terrain proposé par un partenaire foncier selon disponibilités et autorisation de publicité au prix de 99 000 €. Hors droit d'enregistrement et frais de notaire. Terrain + Maison proposés au prix de 279 550 € (Hors branchements et raccordements, papiers peints, peintures, revêtement de sol dans les chambres. Tarif modifiable sans préavis). Etiquette énergie : A. Différents modèles disponibles pour ce terrain. Assurances et garanties du constructeur (RC professionnelle, décennale, dommage ouvrage, garantie de remboursement de l'acompte, livraison à prix et délai convenu) : https://www.maisonsevolution.fr/mentions-legales/.

Contactez l'agence de Mareuil-lès-Meaux

06 22 93 94 71

    * Champs obligatoires

    Vos informations sont traitées par HEXAOM et transmises à un conseiller commercial qui vous contactera afin de répondre à votre demande. Les plans et images présentés sur notre site sont la propriété d’HEXAOM et ne peuvent pas être reproduits sans son accord. Pour retrouver notre politique de protection des données personnelles et exercer vos droits conformément à la « loi informatique et liberté » cliquez-ici.