Maison neuve à
Guignes (77390) Référence : GB2452913_6

Prix du projet : Maison avec Terrain

prix 309 500 €

  • 6 pièces
  • 4 chambres
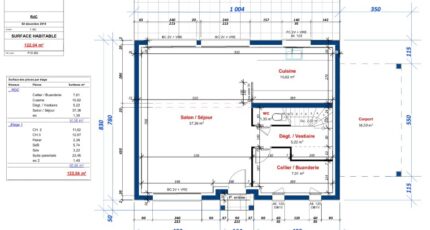
  • Surface maison 122 m2

VENTE : maison T6 (122 m²) à Guignes
À vendre : à quelques minutes de la gare de Verneuil-l'Étang (Paris à 30 min avec le Transilien P), Maisons Evolution Mareuil-lès-Meaux vous présente cette maison de 6 pièces de 122 m² à Guignes (77390). Son intérieur dispose de quatre chambres, d'une cuisine et de deux salles de bains.
Le terrain du bien est de 334 m².
Cette maison comporte 2 niveaux. Elle est neuve.
L'École Élémentaire André Siméon et l'École Maternelle André Siméon sont implantées dans la commune. Niveau transports, il y a deux gares (Verneuil-l'Étang et Mormant) à moins de 10 minutes en voiture. On trouve trois commerces, deux épiceries et un bureau de poste à quelques minutes de la maison.
Son prix de vente est de 309 500 €.
Contactez notre agence (Guillaume BORDES : 06-22-93-94-71) pour obtenir de plus amples informations sur cette maison ou sur les modalités de vente.

Annonce proposée par un Agent Commercial Partenaire.

Mentions légales

Terrain proposé par un partenaire foncier selon disponibilités et autorisation de publicité au prix de 99 000 €. Hors droit d'enregistrement et frais de notaire. Terrain + Maison proposés au prix de 309 500 € (Hors branchements et raccordements, papiers peints, peintures, revêtement de sol dans les chambres. Tarif modifiable sans préavis). Etiquette énergie : A. Différents modèles disponibles pour ce terrain. Assurances et garanties du constructeur (RC professionnelle, décennale, dommage ouvrage, garantie de remboursement de l'acompte, livraison à prix et délai convenu) : https://www.maisonsevolution.fr/mentions-legales/.

Contactez l'agence de Mareuil-lès-Meaux

06 22 93 94 71

    * Champs obligatoires

    Vos informations sont traitées par HEXAOM et transmises à un conseiller commercial qui vous contactera afin de répondre à votre demande. Les plans et images présentés sur notre site sont la propriété d’HEXAOM et ne peuvent pas être reproduits sans son accord. Pour retrouver notre politique de protection des données personnelles et exercer vos droits conformément à la « loi informatique et liberté » cliquez-ici.