Maison neuve à
Grisy-Suisnes (77166) Référence : SS2311768_3

Prix du projet : Maison avec Terrain

prix 333 500 €

  • 6 pièces
  • 5 chambres
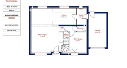
  • Surface maison 121 m2

Grisy-Suisnes : maison F6 (121 m²) à vendre
EMPLACEMENT PRIVILÉGIÉ - MAISON 6 PIÈCES NEUVE
À quelques minutes de la station Gretz-Armainvilliers (Paris à 35 min avec le RER E), Maisons Evolution Mareuil-lès-Meaux vous propose cette maison de 6 pièces de 121 m² et de 400 m² de terrain en vente bénéficiant d'un emplacement privilégié dans Grisy-Suisnes (77166). Elle se divise en cinq chambres, une cuisine et deux salles de bains.
Cette maison compte 2 niveaux. Elle est neuve.
Cette maison se situe dans un secteur prisé. L'École Élémentaire Champ Fleuri et l'École Maternelle la Ruche sont implantées à moins de 10 minutes à pied. Niveau transports, on trouve le RER E et D ainsi que cinq gares à moins de 10 minutes en voiture. Il y a un tennis, une bibliothèque, deux commerces, une boulangerie, deux épiceries et un bureau de poste à proximité du bien.
Elle est à vendre pour la somme de 333 500 €.
N'hésitez pas à prendre contact avec notre agence (SEBAG Stephanie : 06-45-49-40-63) pour tout renseignement sur la maison, sur les démarches à suivre ou sur les modalités de vente. Maisons Evolution Mareuil-lès-Meaux vous accompagne à toutes les étapes de l'achat et dans tous vos projets immobiliers.

Annonce proposée par un Agent Commercial Partenaire.

Mentions légales

Terrain proposé par un partenaire foncier selon disponibilités et autorisation de publicité au prix de 149 000 €. Hors droit d'enregistrement et frais de notaire. Maison proposée, avec un contrat de construction de maison individuelle, dans le cadre de la loi du 19/12/1990, au prix de 184 500 € (Hors branchements et raccordements, papiers peints, peintures, revêtement de sol dans les chambres, qui sont chiffrés dans les travaux qui restent à charge du client. Tarif modifiable sans préavis). Étiquette énergie : A. Différents modèles disponibles pour ce terrain. Assurances et garanties du constructeur comprises (RC professionnelle, décennale, dommage ouvrage).

Contactez l'agence de Mareuil-lès-Meaux

06 22 93 94 71

    * Champs obligatoires

    Vos informations sont traitées par HEXAOM et transmises à un conseiller commercial qui vous contactera afin de répondre à votre demande. Les plans et images présentés sur notre site sont la propriété d’HEXAOM et ne peuvent pas être reproduits sans son accord. Pour retrouver notre politique de protection des données personnelles et exercer vos droits conformément à la « loi informatique et liberté » cliquez-ici.