Maison neuve à
Grisy-Suisnes (77166) Référence : SS2311762_3

Prix du projet : Maison avec Terrain

prix 429 800 €

  • 6 pièces
  • 5 chambres
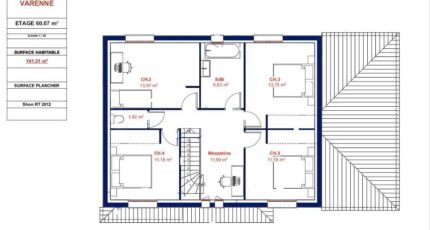
  • Surface maison 141 m2

Grisy-Suisnes : maison T6 (141 m²) en vente
IDÉALEMENT SITUÉE - MAISON 6 PIÈCES NEUVE
En vente : proche de la station Gretz-Armainvilliers (Paris à 35 min par le RER E), notre agence Maisons Evolution Mareuil-lès-Meaux est ravie de vous présenter cette maison de 6 pièces de 141 m² idéalement située dans Grisy-Suisnes (77166).
Cette maison possède 2 niveaux. Son intérieur se divise en cinq chambres, une cuisine et deux salles de bains. La maison est neuve.
Le terrain du bien est de 617 m².
Ce bien se situe dans un secteur recherché. L'École Élémentaire Champ Fleuri et l'École Maternelle la Ruche sont implantées à moins de 10 minutes à pied. Niveau transports en commun, on trouve deux lignes de RER (E et D) ainsi que cinq gares à moins de 10 minutes en voiture. Il y a un tennis, une bibliothèque, deux commerces, une boulangerie, un bureau de poste et deux épiceries à proximité du logement.
Il est à vendre pour la somme de 429 800 €.
Contactez notre constructeur (Stephanie SEBAG : 06-45-49-40-63) pour toute information sur la maison.

Annonce proposée par un Agent Commercial Partenaire.

Mentions légales

Terrain proposé par un partenaire foncier selon disponibilités et autorisation de publicité au prix de 165 000 €. Hors droit d'enregistrement et frais de notaire. Maison proposée, avec un contrat de construction de maison individuelle, dans le cadre de la loi du 19/12/1990, au prix de 264 800 € (Hors branchements et raccordements, papiers peints, peintures, revêtement de sol dans les chambres, qui sont chiffrés dans les travaux qui restent à charge du client. Tarif modifiable sans préavis). Étiquette énergie : A. Différents modèles disponibles pour ce terrain. Assurances et garanties du constructeur comprises (RC professionnelle, décennale, dommage ouvrage).

Contactez l'agence de Mareuil-lès-Meaux

06 22 93 94 71

    * Champs obligatoires

    Vos informations sont traitées par HEXAOM et transmises à un conseiller commercial qui vous contactera afin de répondre à votre demande. Les plans et images présentés sur notre site sont la propriété d’HEXAOM et ne peuvent pas être reproduits sans son accord. Pour retrouver notre politique de protection des données personnelles et exercer vos droits conformément à la « loi informatique et liberté » cliquez-ici.