Maison neuve à
Gazeran (78125) Référence : RC-00118

Prix du projet : Maison avec Terrain

prix 524 700 €

  • 5 pièces
  • 4 chambres
  • Surface maison 114 m2

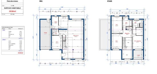
La maison Cubik est une habitation contemporaine à étage, probablement construite en ossature bois, offrant une surface habitable totale de 114,35 m². Son design intègre un garage et une loggia, ajoutant à la fois fonctionnalité et agrément.
Au rez-de-chaussée, d'une surface de 66,22 m², la maison s'ouvre sur un vaste espace jour de 42,75 m², propice aux moments de convivialité. On y trouve également un bureau de 10,13 m², idéal pour le télétravail, un cellier de 4,48 m², un WC de 1,94 m², une entrée de 4,01 m² et un placard de 0,92 m². Le garage intégré de 15,76 m² offre un espace de stationnement et de rangement pratique.
L'étage, d'une surface de 48,13 m², est dédié aux espaces de repos et de détente, avec trois chambres confortables (12,14 m², 14,24 m² et 10,95 m²), une salle d'eau de 7,13 m², un WC de 1,56 m² et un dégagement de 3,79 m². Une loggia de 10,80 m² ajoute un espace extérieur privatif, parfait pour profiter des beaux jours.
La construction en ossature bois, si elle est appliquée à ce modèle Cubik, lui confère les avantages écologiques et économiques déjà évoqués : une excellente isolation thermique et phonique, contribuant à des économies d'énergie significatives et à un confort de vie supérieur. L'utilisation du bois, matériau durable et renouvelable, réduit l'empreinte carbone de l'habitat, tout en garantissant une construction rapide et saine. Le design moderne de la Cubik, combiné aux atouts du bois, en fait une option attractive pour un habitat contemporain et respectueux de l'environnement.

Annonce proposée par un Agent Commercial Partenaire.

Mentions légales

Terrain proposé par un partenaire foncier selon disponibilités et autorisation de publicité au prix de 177 000 €. Hors droit d'enregistrement et frais de notaire. Terrain + Maison proposés au prix de 524 700 € (Hors branchements et raccordements, papiers peints, peintures, revêtement de sol dans les chambres. Tarif modifiable sans préavis). Etiquette énergie : A. Différents modèles disponibles pour ce terrain. Assurances et garanties du constructeur (RC professionnelle, décennale, dommage ouvrage, garantie de remboursement de l'acompte, livraison à prix et délai convenu) : https://www.maisonsevolution.fr/mentions-legales/.

Contactez l'agence de Coignières

01 34 61 42 52

    * Champs obligatoires

    Vos informations sont traitées par HEXAOM et transmises à un conseiller commercial qui vous contactera afin de répondre à votre demande. Les plans et images présentés sur notre site sont la propriété d’HEXAOM et ne peuvent pas être reproduits sans son accord. Pour retrouver notre politique de protection des données personnelles et exercer vos droits conformément à la « loi informatique et liberté » cliquez-ici.