Maison neuve à
Favières (77220) Référence : SS2311732_4

Prix du projet : Maison avec Terrain

prix 318 500 €

  • 5 pièces
  • 3 chambres
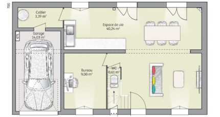
  • Surface maison 90 m2

Maison F5 (90 m²) à vendre à Favières
IDÉALEMENT SITUÉE - MAISON 5 PIÈCES NEUVE
Proche du RER E (station Tournan, 40 min de Paris), à vendre idéalement située dans Favières (77220), notre agence Maisons Evolution Mareuil-lès-Meaux est heureuse de vous présenter cette maison de 5 pièces de 90 m². Elle inclut trois chambres, une cuisine et une salle de bains.
Le terrain de la propriété s'étend sur 220 m².
C'est une maison de 2 niveaux. Elle est neuve.
Cette propriété est située dans un secteur recherché. On trouve l'École Primaire les Petits Hiboux à moins de 10 minutes à pied. Niveau transports, il y a les lignes E et A du RER ainsi que cinq gares à moins de 10 minutes en voiture.
Elle est à vendre pour la somme de 318 500 €.
Contactez Stephanie SEBAG (06-45-49-40-63) pour toute information sur la maison, sur les démarches à suivre ou sur les modalités de vente. Maisons Evolution Mareuil-lès-Meaux est là pour vous accompagner à toutes les étapes de l'achat.

Annonce proposée par un Agent Commercial Partenaire.

Mentions légales

Terrain proposé par un partenaire foncier selon disponibilités et autorisation de publicité au prix de 154 000 €. Hors droit d'enregistrement et frais de notaire. Terrain + Maison proposés au prix de 164 500 € (Hors branchements et raccordements, papiers peints, peintures, revêtement de sol dans les chambres. Tarif modifiable sans préavis). Etiquette énergie : A. Différents modèles disponibles pour ce terrain. Assurances et garanties du constructeur (RC professionnelle, décennale, dommage ouvrage, garantie de remboursement de l'acompte, livraison à prix et délai convenu) : https://www.maisonsevolution.fr/mentions-legales/.

Contactez l'agence de Mareuil-lès-Meaux

06 22 93 94 71

    * Champs obligatoires

    Vos informations sont traitées par HEXAOM et transmises à un conseiller commercial qui vous contactera afin de répondre à votre demande. Les plans et images présentés sur notre site sont la propriété d’HEXAOM et ne peuvent pas être reproduits sans son accord. Pour retrouver notre politique de protection des données personnelles et exercer vos droits conformément à la « loi informatique et liberté » cliquez-ici.