Maison neuve à
Éragny (95610) Référence : CB2351107_1

Prix du projet : Maison avec Terrain

prix 369 500 €

  • 5 pièces
  • 3 chambres
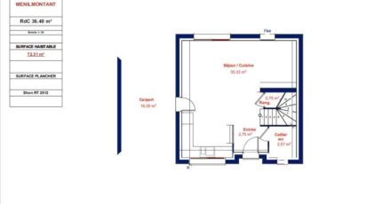
  • Surface maison 70 m2

Éragny - Projet de construction : Maison 5 pièces de 70 m²
PROCHE DE PARIS - MAISON NEUVE SUR-MESURE

À Éragny (95610), à deux pas du Transilien J (gare d'Éragny-Neuville, Paris en 30 minutes), réalisez votre première maison sur-mesure avec Maisons Evolution sur un terrain de 250 m².

Ce projet de maison, sur 2 niveaux, comprend :
3 chambres confortables,
Une cuisine à aménager selon vos envies,
1 salle de bains,
Des volumes optimisés pour un intérieur lumineux et fonctionnel.

Un cadre de vie pratique et agréable :
Écoles de la maternelle au lycée à moins de 10 minutes à pied,
Commodités et services à proximité : bibliothèque, commerces, boulangeries, supermarchés, épiceries, boucheries-charcuteries,
Loisirs à deux pas : tennis, bassin de natation,
Accès facile aux transports pour rejoindre Paris rapidement.

Ce projet de construction (terrain + maison sur-mesure, hors frais annexes) est proposé au prix de 369 500 €, offrant une belle opportunité pour concrétiser votre premier projet immobilier.

Pour plus d'informations, découvrir les modalités de vente ou être accompagné dans vos démarches, contactez :
Caroline BETHERY - O6 26 57 38 84

Maisons Evolution Cormeilles-en-Parisis vous accompagne à chaque étape pour construire votre maison personnalisée, pensée selon vos besoins et vos envies.

Mentions légales

Terrain proposé par un partenaire foncier selon disponibilités et autorisation de publicité au prix de 205 000 €. Hors droit d'enregistrement et frais de notaire. Maison proposée, avec un contrat de construction de maison individuelle, dans le cadre de la loi du 19/12/1990, au prix de 164 500 € (Hors branchements et raccordements, papiers peints, peintures, revêtement de sol dans les chambres, qui sont chiffrés dans les travaux qui restent à charge du client. Tarif modifiable sans préavis). Étiquette énergie : A. Différents modèles disponibles pour ce terrain. Assurances et garanties du constructeur comprises (RC professionnelle, décennale, dommage ouvrage).

Contactez l'agence de Cormeilles-en-Parisis

01 34 18 18 36

    * Champs obligatoires

    Vos informations sont traitées par HEXAOM et transmises à un conseiller commercial qui vous contactera afin de répondre à votre demande. Les plans et images présentés sur notre site sont la propriété d’HEXAOM et ne peuvent pas être reproduits sans son accord. Pour retrouver notre politique de protection des données personnelles et exercer vos droits conformément à la « loi informatique et liberté » cliquez-ici.