Maison neuve à
Dammarie-les-Lys (77190) Référence : FD2410353_1

Prix du projet : Maison avec Terrain

prix 321 240 €

  • 6 pièces
  • 5 chambres
  • Surface maison 121 m2

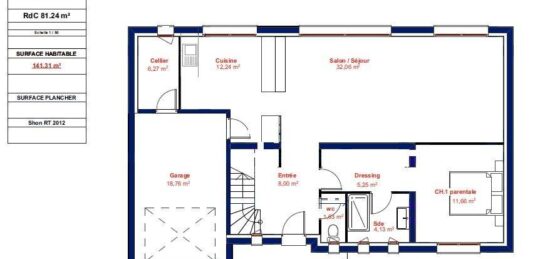
Franck DORSAINT 07 66 67 97 06 de Maisons Évolution vous présente à Boissise-le-Roi un projet de maison neuve de 6 pièces - 121 m², à bâtir sur un terrain de 312 m², situé à seulement quelques minutes de Dammarie-les-Lys.

Cette maison familiale sur deux niveaux comprend cinq chambres, une cuisine ouverte et deux salles de bains, idéale pour un cadre de vie confortable, fonctionnel et proche de la nature.

Le secteur bénéficie de nombreux atouts : établissements scolaires accessibles à pied, gare RER D à proximité, commerces variés et services à quelques minutes.

Prix du projet : 321 240 €
Terrain proposé dans le cadre d'un projet de construction avec Franck - Maisons Évolution.
Contact direct : 07 66 67 97 06

Mentions légales

Terrain proposé par un partenaire foncier selon disponibilités et autorisation de publicité au prix de 118 000 €. Hors droit d'enregistrement et frais de notaire. Terrain + Maison proposés au prix de 321 240 € (Hors branchements et raccordements, papiers peints, peintures, revêtement de sol dans les chambres. Tarif modifiable sans préavis). Etiquette énergie : A. Différents modèles disponibles pour ce terrain. Assurances et garanties du constructeur (RC professionnelle, décennale, dommage ouvrage, garantie de remboursement de l'acompte, livraison à prix et délai convenu) : https://www.maisonsevolution.fr/mentions-legales/.

Contactez l'agence de Savigny-sur-Orge

01 69 43 15 78

    * Champs obligatoires

    Vos informations sont traitées par HEXAOM et transmises à un conseiller commercial qui vous contactera afin de répondre à votre demande. Les plans et images présentés sur notre site sont la propriété d’HEXAOM et ne peuvent pas être reproduits sans son accord. Pour retrouver notre politique de protection des données personnelles et exercer vos droits conformément à la « loi informatique et liberté » cliquez-ici.