Maison neuve à
Courdimanche (95800) Référence : CB2341989_1

Prix du projet : Maison avec Terrain

prix 390 650 €

  • 5 pièces
  • 3 chambres
  • Surface maison 90 m2

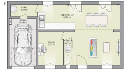
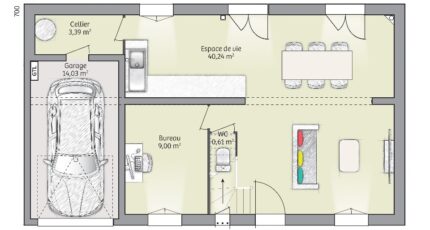
VENTE MAISON T5 - 90 m² - COURDIMANCHE
IDÉALEMENT SITUÉE - PROJET SUR MESURE AVEC MAISONS EVOLUTION

À seulement 40 minutes de Paris, à deux pas de la station Cergy-le-Haut du RER A, découvrez cette maison neuve de 5 pièces (90 m²) sur un terrain de 780 m², idéale pour un projet familial sur mesure.

Cette maison à deux niveaux comprend :

3 chambres
Cuisine moderne
Salle de bains
Espaces lumineux et modulables selon vos besoins

Située dans un quartier attractif et convivial, elle bénéficie d'une proximité pratique :
Écoles : École Primaire Publique André Parrain et École Primaire La Louvière (<10 min à pied)
Transports : RER A et C, 28 gares accessibles en moins de 10 min en voiture
Loisirs et services : 3 courts de tennis, bibliothèque, boulangerie, commerces et supermarchés à proximité

Avec Maisons Evolution, personnalisez votre future maison selon vos envies et profitez d'un accompagnement complet de votre projet, de la conception à la réalisation.

Prix de vente terrain + maison (hors frais annexes) : 390 650 €

Pour plus d'informations ou pour découvrir ce projet sur mesure, contactez Caroline BETHERY au O6 26 57 38 84

Mentions légales

Terrain proposé par un partenaire foncier selon disponibilités et autorisation de publicité au prix de 202 000 €. Hors droit d'enregistrement et frais de notaire. Maison proposée, avec un contrat de construction de maison individuelle, dans le cadre de la loi du 19/12/1990, au prix de 188 650 € (Hors branchements et raccordements, papiers peints, peintures, revêtement de sol dans les chambres, qui sont chiffrés dans les travaux qui restent à charge du client. Tarif modifiable sans préavis). Étiquette énergie : A. Différents modèles disponibles pour ce terrain. Assurances et garanties du constructeur comprises (RC professionnelle, décennale, dommage ouvrage).

Contactez l'agence de Cormeilles-en-Parisis

01 34 18 18 36

    * Champs obligatoires

    Vos informations sont traitées par HEXAOM et transmises à un conseiller commercial qui vous contactera afin de répondre à votre demande. Les plans et images présentés sur notre site sont la propriété d’HEXAOM et ne peuvent pas être reproduits sans son accord. Pour retrouver notre politique de protection des données personnelles et exercer vos droits conformément à la « loi informatique et liberté » cliquez-ici.